Maison neuve à
Routot (27350) Référence : RC2444829_4

Prix du projet : Maison avec Terrain

prix 336 855 €

  • 5 pièces
  • 3 chambres
  • Surface maison 120 m2

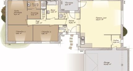
A construire : maison T5 (120 m²) à Routot
IDÉALEMENT SITUÉE - MAISON 5 PIÈCES NEUVE
En vente : à 29 km de la Manche et à quelques kilomètres de Rouen, nous sommes heureux de vous proposer, idéalement située dans Routot (27350), cette maison de 5 pièces de plain-pied de 120 m² et de 1 588 m² de terrain.
Conçue de plain-pied, elle inclut trois chambres, une cuisine et deux salles de bains. La maison est neuve.
Cette maison est située dans un secteur attractif. Le Collège le Roumois se trouve à moins de 10 minutes à pied. Il y a deux tennis, deux commerces et une épicerie à proximité. Le marché Place Leclerc a lieu tous les mercredis matin.
Elle est proposée à l'achat pour 336 855 €.
N'hésitez pas à prendre contact avec notre agence (RENIER Célia : 07-62-90-87-77) pour toute question sur la maison, sur les démarches à suivre ou sur les modalités de vente. Maisons Balency Boos est là pour vous accompagner à toutes les étapes de l'achat.

Annonce proposée par un Agent Commercial Partenaire.

Mentions légales

Terrain proposé par un partenaire foncier selon disponibilités et autorisation de publicité au prix de 65 000 €. Hors droit d'enregistrement et frais de notaire. Terrain + Maison proposés au prix de 336 855 € (Hors branchements et raccordements, papiers peints, peintures, revêtement de sol dans les chambres. Tarif modifiable sans préavis). Etiquette énergie : A. Différents modèles disponibles pour ce terrain. Assurances et garanties du constructeur (RC professionnelle, décennale, dommage ouvrage, garantie de remboursement de l'acompte, livraison à prix et délai convenu) : https://www.maisons-balency.fr/informations-legales/. HEXAOM Services est enregistré auprès de l'ORIAS en tant que Courtier en financement, Niveau 1, sous le numéro 14001345.

Contactez l'agence de Boos

02 35 80 66 66

    * Champs obligatoires

    Vos informations sont traitées par HEXAOM et transmises à un conseiller commercial qui vous contactera afin de répondre à votre demande. Les plans et images présentés sur notre site sont la propriété d’HEXAOM et ne peuvent pas être reproduits sans son accord. Pour retrouver notre politique de protection des données personnelles et exercer vos droits conformément à la « loi informatique et liberté » cliquez-ici.