Maison neuve à
Rouxmesnil-Bouteilles (76370) Référence : MJ2349075_3

Prix du projet : Maison avec Terrain

prix 249 000 €

  • 6 pièces
  • 4 chambres
  • Surface maison 98 m2

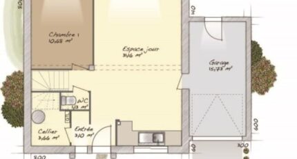
Maison F6 (98 m²) à vendre à Rouxmesnil-Bouteilles
QUARTIER RECHERCHÉ - MAISON 6 PIÈCES NEUVE
À 3 km de la Manche et à 3 km de Dieppe, Maisons Balency Boos vous présente cette maison de 6 pièces de 98 m² construite dans un quartier prisé de Rouxmesnil-Bouteilles (76370). Son intérieur comporte quatre chambres, une cuisine et une salle de bains.
Le terrain de la propriété est de 1 251 m².
C'est une maison de 2 niveaux. Elle est neuve.
Cette maison est située dans un secteur convoité. Il y a l'École Primaire le Vallon-les Farfadets la Salicorne à moins de 10 minutes à pied et deux structures d'accueil pour la petite enfance. Niveau transports, on trouve deux gares (Dieppe et Saint-Aubin-sur-Scie) à moins de 10 minutes en voiture. La nationale N27 est accessible à 9 km. Il y a un tennis, plusieurs commerces, une boulangerie et une épicerie à quelques minutes.
Son prix de vente est de 249 000 €.
Contactez notre agence (Michael JOURDON : 06.43.05.84.44) pour toute question sur la maison ou sur les démarches à suivre. Maisons Balency Boos est là pour vous accompagner dans tous vos projets immobiliers.

Annonce proposée par un Agent Commercial Partenaire.

Mentions légales

Terrain proposé par un partenaire foncier selon disponibilités et autorisation de publicité au prix de 70 000 €. Hors droit d'enregistrement et frais de notaire. Maison proposée, avec un contrat de construction de maison individuelle, dans le cadre de la loi du 19/12/1990, au prix de 179 000 € (Hors branchements et raccordements, papiers peints, peintures, revêtement de sol dans les chambres, qui sont chiffrés dans les travaux qui restent à charge du client. Tarif modifiable sans préavis). Étiquette énergie : A. Différents modèles disponibles pour ce terrain. Assurances et garanties du constructeur comprises (RC professionnelle, décennale, dommage ouvrage).

Contactez l'agence de Boos

02 35 80 66 66

    * Champs obligatoires

    Vos informations sont traitées par HEXAOM et transmises à un conseiller commercial qui vous contactera afin de répondre à votre demande. Les plans et images présentés sur notre site sont la propriété d’HEXAOM et ne peuvent pas être reproduits sans son accord. Pour retrouver notre politique de protection des données personnelles et exercer vos droits conformément à la « loi informatique et liberté » cliquez-ici.