Maison neuve à
Rueil-Malmaison (92500) Référence : AN2330282_1

Prix du projet : Maison avec Terrain

prix 1 150 000 €

  • 6 pièces
  • 5 chambres
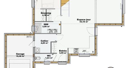
  • Surface maison 160 m2

VENTE : maison de 6 pièces (160 m²) à Rueil-Malmaison
MAISON 6 PIÈCES NEUVE
À quelques minutes du RER A (10 min de Paris), en vente à Rueil-Malmaison (92500), nous sommes ravis de vous proposer cette maison de 6 pièces de 160 m² et de 725 m² de terrain.
Cette maison comporte 2 niveaux. Son intérieur est composé de cinq chambres, d'une cuisine et de deux salles de bains. Cette maison est neuve.
Des écoles du primaire et du secondaire sont implantées à moins de 10 minutes à pied, une structure d'accueil pour les enfants en bas âge, tout comme une établissement du supérieur dans un rayon de 1 km : l'école École nationale supérieure du pétrole et des moteurs. Côté transports, on trouve deux lignes de RER (A et C) ainsi que 62 gares à moins de 10 minutes en voiture. Il y a une bibliothèque, des boulangeries, des commerces, trois supermarchés, un bureau de poste et des boucheries-charcuteries à quelques minutes à peine. Enfin, le marché Place Jaurès anime les environs.
Elle est proposée à l'achat pour 1 150 000 €.
N'hésitez pas à prendre contact avec notre agence (Anda NISTOR : 07-81-86-62-91) pour toute question sur cette maison ou sur les modalités de vente. Maisons Balency Dammartin-en-Goële vous accompagne à toutes les étapes de votre projet et dans toutes vos démarches.

Annonce proposée par un Agent Commercial Partenaire.

Mentions légales

Terrain proposé par un partenaire foncier selon disponibilités et autorisation de publicité au prix de 705 000 €. Hors droit d'enregistrement et frais de notaire. Maison proposée, avec un contrat de construction de maison individuelle, dans le cadre de la loi du 19/12/1990, au prix de 445 000 € (Hors branchements et raccordements, papiers peints, peintures, revêtement de sol dans les chambres, qui sont chiffrés dans les travaux qui restent à charge du client. Tarif modifiable sans préavis). Étiquette énergie : A. Différents modèles disponibles pour ce terrain. Assurances et garanties du constructeur comprises (RC professionnelle, décennale, dommage ouvrage).

Contactez l'agence de Dammartin-en-Goële

01 60 54 23 04

    * Champs obligatoires

    Vos informations sont traitées par HEXAOM et transmises à un conseiller commercial qui vous contactera afin de répondre à votre demande. Les plans et images présentés sur notre site sont la propriété d’HEXAOM et ne peuvent pas être reproduits sans son accord. Pour retrouver notre politique de protection des données personnelles et exercer vos droits conformément à la « loi informatique et liberté » cliquez-ici.