Maison neuve à
Ry (76116) Référence : EL2321382_5

Prix du projet : Maison avec Terrain

prix 379 400 €

  • 7 pièces
  • 5 chambres
  • Surface maison 125 m2

VENTE d'une maison de 7 pièces (125 m²) à Ry
IDÉALEMENT SITUÉE - MAISON 7 PIÈCES NEUVE
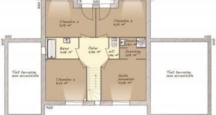
En vente : à quelques kilomètres de Rouen, Maisons Balency Boos vous présente, idéalement située dans Ry (76116), cette maison de 7 pièces de 125 m² et de 1 319 m² de terrain. Elle est composée de cinq chambres, d'une cuisine et de trois salles de bains.
C'est une maison de 2 niveaux. Elle est neuve.
La maison est située dans un quartier convoité. L'École Primaire Sobelman est implantée à moins de 10 minutes à pied. Niveau transports, on trouve la gare Morgny-la-Pommeraye à moins de 10 minutes en voiture. L'autoroute A28 et les nationales N28 et N338 sont accessibles à moins de 20 km. Il y a un tennis, une bibliothèque, trois commerces, une boulangerie, un supermarché, deux épiceries et deux boucheries-charcuteries à proximité.
Son prix de vente est de 379 400 €.
Contactez Aurélien LEOVANT (02-35-80-66-66) pour obtenir de plus amples informations sur la maison. Faites de vos projets immobiliers une réalité avec Maisons Balency Boos.

Annonce proposée par un Agent Commercial Partenaire.

Mentions légales

Terrain proposé par un partenaire foncier selon disponibilités et autorisation de publicité au prix de 49 000 €. Hors droit d'enregistrement et frais de notaire. Terrain + Maison proposés au prix de 379 400 € (Hors branchements et raccordements, papiers peints, peintures, revêtement de sol dans les chambres. Tarif modifiable sans préavis). Etiquette énergie : A. Différents modèles disponibles pour ce terrain. Assurances et garanties du constructeur (RC professionnelle, décennale, dommage ouvrage, garantie de remboursement de l'acompte, livraison à prix et délai convenu) : https://www.maisons-balency.fr/informations-legales/. HEXAOM Services est enregistré auprès de l'ORIAS en tant que Courtier en financement, Niveau 1, sous le numéro 14001345.

Contactez l'agence de Boos

02 35 80 66 66

    * Champs obligatoires

    Vos informations sont traitées par HEXAOM et transmises à un conseiller commercial qui vous contactera afin de répondre à votre demande. Les plans et images présentés sur notre site sont la propriété d’HEXAOM et ne peuvent pas être reproduits sans son accord. Pour retrouver notre politique de protection des données personnelles et exercer vos droits conformément à la « loi informatique et liberté » cliquez-ici.