Maison neuve à
Ry (76116) Référence : EL2322384_1

Prix du projet : Maison avec Terrain

prix 268 600 €

  • 9 pièces
  • 5 chambres
  • Surface maison 124 m2

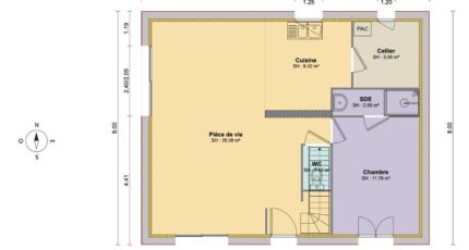
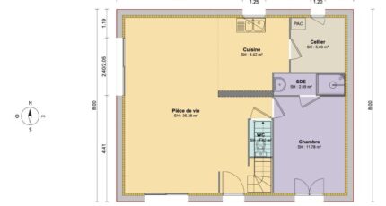
VENTE d'une maison de 9 pièces (124 m²) à Ry
IDÉALEMENT SITUÉE - MAISON 9 PIÈCES NEUVE
À vendre : à quelques kilomètres de Rouen, venez découvrir cette maison de 9 pièces de 124 m² et de 941 m² de terrain idéalement située dans Ry (76116).
C'est une maison de 2 niveaux. Son intérieur offre cinq chambres, une cuisine et trois salles de bains. Cette maison est neuve.
La propriété est située dans un secteur attractif. L'École Primaire Sobelman se trouve à moins de 10 minutes à pied. Niveau transports en commun, il y a la gare Morgny-la-Pommeraye à moins de 10 minutes en voiture. L'autoroute A28 et les nationales N28 et N338 sont accessibles à moins de 20 km. On trouve un tennis, une bibliothèque, trois commerces, une boulangerie, un supermarché, deux boucheries-charcuteries et deux épiceries dans les environs.
Son prix de vente est de 268 600 €.
Contactez Dany LEOVANT (tél : 06-09-43-87-49) pour toute information sur la maison, sur les modalités de vente ou sur les démarches à suivre. Faites de vos projets immobiliers une réalité avec Maisons Balency Boos.

Annonce proposée par un Agent Commercial Partenaire.

Mentions légales

Terrain proposé par un partenaire foncier selon disponibilités et autorisation de publicité au prix de 79 000 €. Hors droit d'enregistrement et frais de notaire. Terrain + Maison proposés au prix de 189 600 € (Hors branchements et raccordements, papiers peints, peintures, revêtement de sol dans les chambres. Tarif modifiable sans préavis). Etiquette énergie : A. Différents modèles disponibles pour ce terrain. Assurances et garanties du constructeur (RC professionnelle, décennale, dommage ouvrage, garantie de remboursement de l'acompte, livraison à prix et délai convenu) : https://www.maisons-balency.fr/informations-legales/. HEXAOM Services est enregistré auprès de l'ORIAS en tant que Courtier en financement, Niveau 1, sous le numéro 14001345.

Contactez l'agence de Boos

02 35 80 66 66

    * Champs obligatoires

    Vos informations sont traitées par HEXAOM et transmises à un conseiller commercial qui vous contactera afin de répondre à votre demande. Les plans et images présentés sur notre site sont la propriété d’HEXAOM et ne peuvent pas être reproduits sans son accord. Pour retrouver notre politique de protection des données personnelles et exercer vos droits conformément à la « loi informatique et liberté » cliquez-ici.