Maison neuve à
Sacquenville (27930) Référence : EL2361290_1

Prix du projet : Maison avec Terrain

prix 160 000 €

  • 3 pièces
  • 2 chambres
  • Surface maison 50 m2

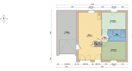
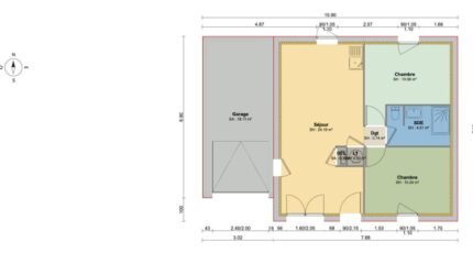
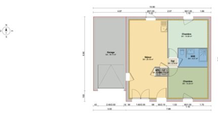
VENTE d'une maison de 4 pièces (49 m²) à Sacquenville
IDÉALEMENT SITUÉE - MAISON 4 PIÈCES NEUVE
À vendre : localisée à deux pas d'Évreux, idéalement située dans Sacquenville (27930), notre agence Maisons Balency Boos est heureuse de vous proposer cette maison de 4 pièces de plain-pied de 49 m² et de 825 m² de terrain. Elle dispose de deux chambres, d'une cuisine et d'une salle de bains.
La maison est neuve.
Cette maison est située dans un secteur convoité. On y trouve une école primaire. Niveau transports, on trouve la gare Évreux Normandie à moins de 10 minutes en voiture. Les nationales N13 et N154 sont accessibles à moins de 8 km. Il y a deux épiceries dans les environs.
Son prix de vente est de 160 000 €.
Contactez Aurélien LEOVANT (tél : 02-35-80-66-66) pour tout renseignement sur le bien.

Annonce proposée par un Agent Commercial Partenaire.

Mentions légales

Terrain proposé par un partenaire foncier selon disponibilités et autorisation de publicité au prix de 55 000 €. Hors droit d'enregistrement et frais de notaire. Terrain + Maison proposés au prix de 160 000 € (Hors branchements et raccordements, papiers peints, peintures, revêtement de sol dans les chambres. Tarif modifiable sans préavis). Etiquette énergie : A. Différents modèles disponibles pour ce terrain. Assurances et garanties du constructeur (RC professionnelle, décennale, dommage ouvrage, garantie de remboursement de l'acompte, livraison à prix et délai convenu) : https://www.maisons-balency.fr/informations-legales/. HEXAOM Services est enregistré auprès de l'ORIAS en tant que Courtier en financement, Niveau 1, sous le numéro 14001345.

Contactez l'agence de Boos

02 35 80 66 66

    * Champs obligatoires

    Vos informations sont traitées par HEXAOM et transmises à un conseiller commercial qui vous contactera afin de répondre à votre demande. Les plans et images présentés sur notre site sont la propriété d’HEXAOM et ne peuvent pas être reproduits sans son accord. Pour retrouver notre politique de protection des données personnelles et exercer vos droits conformément à la « loi informatique et liberté » cliquez-ici.