Maison neuve à
Saint-Aignan-sur-Ry (76116) Référence : KXA2334234_4

Prix du projet : Maison avec Terrain

prix 275 000 €

  • 5 pièces
  • 3 chambres
  • Surface maison 120 m2

VENTE : maison de 5 pièces (120 m²) à Saint-Aignan-sur-Ry
PROCHE DE ROUEN - MAISON 5 PIÈCES NEUVE
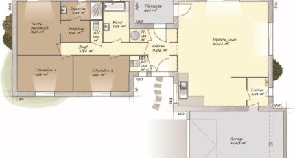
En vente à 20 km de Rouen, Maisons Balency Boos vous présente à Saint-Aignan-sur-Ry (76116), cette maison de 5 pièces de plain-pied de 120 m² et de 515 m² de terrain.
Son intérieur inclut trois chambres, une cuisine et deux salles de bains. Cette maison est neuve.
Niveau transports, on trouve deux gares (Morgny-la-Pommeraye et Longuerue-Vieux-Manoir) à moins de 10 minutes en voiture. L'autoroute A28 est accessible à 10 km. Il y a une boulangerie à quelques minutes de la maison.
Son prix de vente est de 275 000 €.
Prenez contact avec notre agence (XAVIER ALVES Kévin : 06-58-91-13-87) pour tout renseignement sur la maison ou sur les démarches à suivre. Maisons Balency Boos vous accompagne à toutes les étapes de votre projet et dans tous vos projets immobiliers.

Annonce proposée par un Agent Commercial Partenaire.

Mentions légales

Terrain proposé par un partenaire foncier selon disponibilités et autorisation de publicité au prix de 38 000 €. Hors droit d'enregistrement et frais de notaire. Terrain + Maison proposés au prix de 237 000 € (Hors branchements et raccordements, papiers peints, peintures, revêtement de sol dans les chambres. Tarif modifiable sans préavis). Etiquette énergie : A. Différents modèles disponibles pour ce terrain. Assurances et garanties du constructeur (RC professionnelle, décennale, dommage ouvrage, garantie de remboursement de l'acompte, livraison à prix et délai convenu) : https://www.maisons-balency.fr/informations-legales/. HEXAOM Services est enregistré auprès de l'ORIAS en tant que Courtier en financement, Niveau 1, sous le numéro 14001345.

Contactez l'agence de Boos

02 35 80 66 66

    * Champs obligatoires

    Vos informations sont traitées par HEXAOM et transmises à un conseiller commercial qui vous contactera afin de répondre à votre demande. Les plans et images présentés sur notre site sont la propriété d’HEXAOM et ne peuvent pas être reproduits sans son accord. Pour retrouver notre politique de protection des données personnelles et exercer vos droits conformément à la « loi informatique et liberté » cliquez-ici.