Maison neuve à
Saint-Aubin-Celloville (76520) Référence : AK2389669_1

Prix du projet : Maison avec Terrain

prix 420 000 €

  • 8 pièces
  • 4 chambres
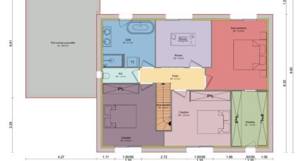
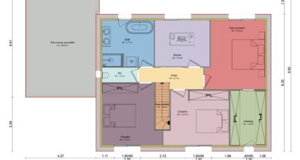
  • Surface maison 130 m2

Saint-Aubin-Celloville : maison T8 (130 m²) à vendre
EMPLACEMENT PRIVILÉGIÉ - MAISON 8 PIÈCES NEUVE
À vendre : à 9 km de Rouen, Maisons Balency Boos vous propose cette maison de 8 pièces de 130 m² bénéficiant d'un emplacement d'exception dans Saint-Aubin-Celloville (76520).
Cette maison possède 2 niveaux. Elle compte quatre chambres, une cuisine et deux salles de bains. La maison est neuve.
Le terrain de la propriété s'étend sur 800 m².
Cette maison se situe dans un secteur prisé. On trouve l'École Primaire Rimbaud-Doisneau à moins de 10 minutes à pied. Côté transports, il y a cinq gares à moins de 10 minutes en voiture. Les autoroutes A13 et A139 et les nationales N138, N28 et N338 sont accessibles à moins de 10 km. On trouve un tennis à quelques minutes du bien.
Elle est à vendre pour la somme de 420 000 €.
Contactez notre agence (Amane JOURDON : 06-98-97-57-93) pour toute question sur la maison, sur les démarches à suivre ou sur les modalités de vente. Maisons Balency Boos vous accompagne dans tous vos projets immobiliers et à toutes les étapes de l'achat.

Annonce proposée par un Agent Commercial Partenaire.

Mentions légales

Terrain proposé par un partenaire foncier selon disponibilités et autorisation de publicité au prix de 110 000 €. Hors droit d'enregistrement et frais de notaire. Terrain + Maison proposés au prix de 310 000 € (Hors branchements et raccordements, papiers peints, peintures, revêtement de sol dans les chambres. Tarif modifiable sans préavis). Etiquette énergie : A. Différents modèles disponibles pour ce terrain. Assurances et garanties du constructeur (RC professionnelle, décennale, dommage ouvrage, garantie de remboursement de l'acompte, livraison à prix et délai convenu) : https://www.maisons-balency.fr/informations-legales/. HEXAOM Services est enregistré auprès de l'ORIAS en tant que Courtier en financement, Niveau 1, sous le numéro 14001345.

Contactez l'agence de Boos

02 35 80 66 66

    * Champs obligatoires

    Vos informations sont traitées par HEXAOM et transmises à un conseiller commercial qui vous contactera afin de répondre à votre demande. Les plans et images présentés sur notre site sont la propriété d’HEXAOM et ne peuvent pas être reproduits sans son accord. Pour retrouver notre politique de protection des données personnelles et exercer vos droits conformément à la « loi informatique et liberté » cliquez-ici.