Maison neuve à
Saint-Aubin-Celloville (76520) Référence : AK2389669_6

Prix du projet : Maison avec Terrain

prix 330 000 €

  • 7 pièces
  • 6 chambres
  • Surface maison 104 m2

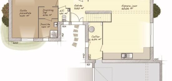
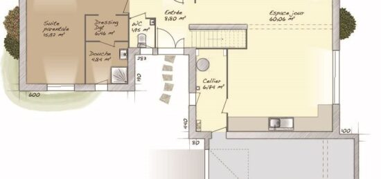
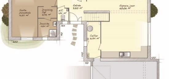
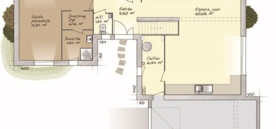
Maison de 7 pièces (104 m²) en vente à Saint-Aubin-Celloville
EMPLACEMENT PRIVILÉGIÉ - MAISON 7 PIÈCES NEUVE
À quelques kilomètres de Rouen, nous sommes heureux de vous présenter cette maison de 7 pièces de 104 m² et de 800 m² de terrain bénéficiant d'un emplacement privilégié dans Saint-Aubin-Celloville (76520). Son intérieur se divise en six chambres, une cuisine et deux salles de bains.
Cette maison comporte 2 niveaux. Elle est neuve.
La maison se trouve dans un secteur recherché. Il y a l'École Primaire Rimbaud-Doisneau à moins de 10 minutes à pied. Côté transports, on trouve cinq gares à moins de 10 minutes en voiture. Les autoroutes A13 et A139 et les nationales N138, N28 et N338 sont accessibles à moins de 10 km. Il y a un tennis dans les environs.
Elle est proposée à l'achat pour 330 000 €.
Contactez Amane JOURDON (06-98-97-57-93) pour plus de renseignements sur la maison ou sur les démarches à suivre.

Annonce proposée par un Agent Commercial Partenaire.

Mentions légales

Terrain proposé par un partenaire foncier selon disponibilités et autorisation de publicité au prix de 110 000 €. Hors droit d'enregistrement et frais de notaire. Terrain + Maison proposés au prix de 330 000 € (Hors branchements et raccordements, papiers peints, peintures, revêtement de sol dans les chambres. Tarif modifiable sans préavis). Etiquette énergie : A. Différents modèles disponibles pour ce terrain. Assurances et garanties du constructeur (RC professionnelle, décennale, dommage ouvrage, garantie de remboursement de l'acompte, livraison à prix et délai convenu) : https://www.maisons-balency.fr/informations-legales/. HEXAOM Services est enregistré auprès de l'ORIAS en tant que Courtier en financement, Niveau 1, sous le numéro 14001345.

Contactez l'agence de Boos

02 35 80 66 66

    * Champs obligatoires

    Vos informations sont traitées par HEXAOM et transmises à un conseiller commercial qui vous contactera afin de répondre à votre demande. Les plans et images présentés sur notre site sont la propriété d’HEXAOM et ne peuvent pas être reproduits sans son accord. Pour retrouver notre politique de protection des données personnelles et exercer vos droits conformément à la « loi informatique et liberté » cliquez-ici.