Maison neuve à
Saint-Aubin-Épinay (76160) Référence : MJ2349204_2

Prix du projet : Maison avec Terrain

prix 427 000 €

  • 7 pièces
  • 4 chambres
  • Surface maison 160 m2

VENTE d'une maison T7 (160 m²) à Saint-Aubin-Épinay
IDÉALEMENT SITUÉE - MAISON 7 PIÈCES NEUVE
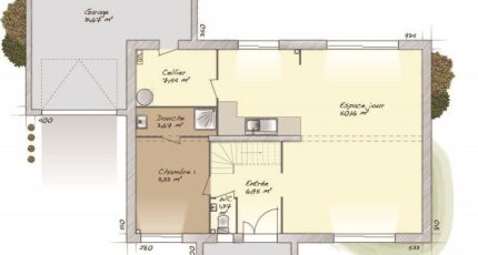
À vendre : localisée à deux pas de Rouen, nous vous présentons, idéalement située dans Saint-Aubin-Épinay (76160), cette maison de 7 pièces de 160 m². Son intérieur est composé de quatre chambres, d'une cuisine et de deux salles de bains.
Le terrain du bien s'étend sur 759 m².
Cette maison possède 2 niveaux. Elle est neuve.
La maison se situe dans un secteur recherché. Il y a des écoles maternelles et élémentaires à moins de 10 minutes à pied et, comme l'École Maternelle l'Eau Vive. Niveau transports, on trouve quatre gares à moins de 10 minutes en voiture. Les autoroutes A28 et A150 et les nationales N28 et N338 sont accessibles à moins de 9 km.
Elle est proposée à l'achat pour 427 000 €.
N'hésitez pas à prendre contact avec notre agence (Michael JOURDON : 06.43.05.84.44) pour toute information sur la maison ou sur les modalités de vente. Faites de vos projets immobiliers une réalité avec Maisons Balency Boos.

Annonce proposée par un Agent Commercial Partenaire.

Mentions légales

Terrain proposé par un partenaire foncier selon disponibilités et autorisation de publicité au prix de 127 000 €. Hors droit d'enregistrement et frais de notaire. Maison proposée, avec un contrat de construction de maison individuelle, dans le cadre de la loi du 19/12/1990, au prix de 300 000 € (Hors branchements et raccordements, papiers peints, peintures, revêtement de sol dans les chambres, qui sont chiffrés dans les travaux qui restent à charge du client. Tarif modifiable sans préavis). Étiquette énergie : A. Différents modèles disponibles pour ce terrain. Assurances et garanties du constructeur comprises (RC professionnelle, décennale, dommage ouvrage).

Contactez l'agence de Boos

02 35 80 66 66

    * Champs obligatoires

    Vos informations sont traitées par HEXAOM et transmises à un conseiller commercial qui vous contactera afin de répondre à votre demande. Les plans et images présentés sur notre site sont la propriété d’HEXAOM et ne peuvent pas être reproduits sans son accord. Pour retrouver notre politique de protection des données personnelles et exercer vos droits conformément à la « loi informatique et liberté » cliquez-ici.