Maison neuve à
Saint-Aubin-Épinay (76160) Référence : SEMA9025_1

Prix du projet : Maison avec Terrain

prix 261 000 €

  • 4 pièces
  • 2 chambres
  • Surface maison 60 m2

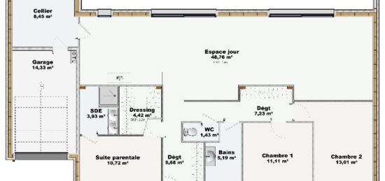
Maison de 4 pièces (60 m²) à vendre à Saint-Aubin-Épinay
MAISON 4 PIÈCES NEUVE - PROCHE DE ROUEN
À deux pas de Rouen, nous vous présentons à vendre à Saint-Aubin-Épinay (76160), cette maison de 4 pièces de plain-pied de 60 m².
Elle est composée de deux chambres, d'une cuisine et d'une salle de bains. La maison est neuve.
Le terrain du bien est de 800 m².
Il y a des écoles maternelles et élémentaires à moins de 10 minutes à pied et, comme l'École Maternelle l'Eau Vive. Niveau transports en commun, on trouve quatre gares à moins de 10 minutes en voiture. Les autoroutes A28 et A150 et les nationales N28 et N338 sont accessibles à moins de 9 km.
Son prix de vente est de 261 000 €.
N'hésitez pas à prendre contact avec Sébastien MASSON (tél : 06-23-38-14-17) pour plus d'informations sur cette maison, sur les démarches à suivre ou sur les modalités de vente. Maisons Balency Boos est là pour vous accompagner à toutes les étapes de votre projet.

Annonce proposée par un Agent Commercial Partenaire.

Mentions légales

Terrain proposé par un partenaire foncier selon disponibilités et autorisation de publicité au prix de 145 000 €. Hors droit d'enregistrement et frais de notaire. Maison proposée, avec un contrat de construction de maison individuelle, dans le cadre de la loi du 19/12/1990, au prix de 116 000 € (Hors branchements et raccordements, papiers peints, peintures, revêtement de sol dans les chambres, qui sont chiffrés dans les travaux qui restent à charge du client. Tarif modifiable sans préavis). Étiquette énergie : A. Différents modèles disponibles pour ce terrain. Assurances et garanties du constructeur comprises (RC professionnelle, décennale, dommage ouvrage).

Contactez l'agence de Boos

02 35 80 66 66

    * Champs obligatoires

    Vos informations sont traitées par HEXAOM et transmises à un conseiller commercial qui vous contactera afin de répondre à votre demande. Les plans et images présentés sur notre site sont la propriété d’HEXAOM et ne peuvent pas être reproduits sans son accord. Pour retrouver notre politique de protection des données personnelles et exercer vos droits conformément à la « loi informatique et liberté » cliquez-ici.