Maison neuve à
Saint-Aubin-Épinay (76160) Référence : SEMA9025_10

Prix du projet : Maison avec Terrain

prix 485 000 €

  • 7 pièces
  • 5 chambres
  • Surface maison 170 m2

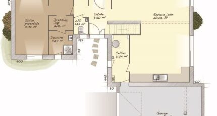
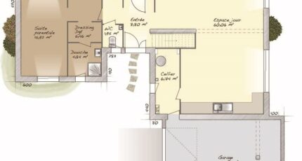
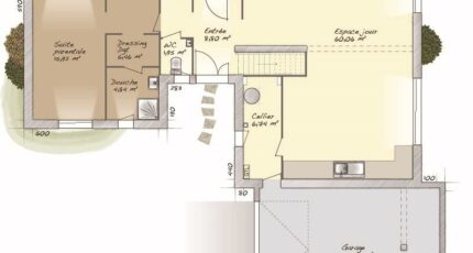
VENTE d'une maison F7 (170 m²) à Saint-Aubin-Épinay
PROCHE DE ROUEN - MAISON 7 PIÈCES NEUVE
À vendre : située à quelques kilomètres de Rouen, votre agence Maisons Balency Boos est heureuse de vous proposer cette maison de 7 pièces de plain-pied de 170 m² à Saint-Aubin-Épinay (76160).
Son intérieur se divise en cinq chambres, une cuisine et trois salles de bains. Cette maison est neuve.
Le terrain de la propriété s'étend sur 800 m².
Des écoles maternelles et élémentaires sont implantées à moins de 10 minutes à pied, tout comme, comme l'École Maternelle l'Eau Vive. Côté transports, il y a quatre gares à moins de 10 minutes en voiture. Les autoroutes A28 et A150 et les nationales N28 et N338 sont accessibles à moins de 9 km.
Son prix de vente est de 485 000 €.
Prenez contact avec notre constructeur (MASSON Sébastien : 06-23-38-14-17) pour plus d'informations sur cette maison.

Annonce proposée par un Agent Commercial Partenaire.

Mentions légales

Terrain proposé par un partenaire foncier selon disponibilités et autorisation de publicité au prix de 145 000 €. Hors droit d'enregistrement et frais de notaire. Maison proposée, avec un contrat de construction de maison individuelle, dans le cadre de la loi du 19/12/1990, au prix de 340 000 € (Hors branchements et raccordements, papiers peints, peintures, revêtement de sol dans les chambres, qui sont chiffrés dans les travaux qui restent à charge du client. Tarif modifiable sans préavis). Étiquette énergie : A. Différents modèles disponibles pour ce terrain. Assurances et garanties du constructeur comprises (RC professionnelle, décennale, dommage ouvrage).

Contactez l'agence de Boos

02 35 80 66 66

    * Champs obligatoires

    Vos informations sont traitées par HEXAOM et transmises à un conseiller commercial qui vous contactera afin de répondre à votre demande. Les plans et images présentés sur notre site sont la propriété d’HEXAOM et ne peuvent pas être reproduits sans son accord. Pour retrouver notre politique de protection des données personnelles et exercer vos droits conformément à la « loi informatique et liberté » cliquez-ici.