Maison neuve à
Saint-Aubin-Épinay (76160) Référence : SEMA9025_11

Prix du projet : Maison avec Terrain

prix 260 000 €

  • 4 pièces
  • 2 chambres
  • Surface maison 50 m2

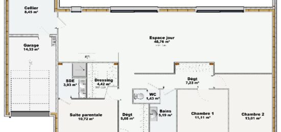
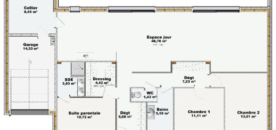
VENTE d'une maison F4 (50 m²) à Saint-Aubin-Épinay
MAISON 4 PIÈCES NEUVE - PROCHE DE ROUEN
En vente à quelques kilomètres de Rouen, notre agence Maisons Balency Boos est ravie de vous présenter cette maison de 4 pièces de plain-pied de 50 m² à Saint-Aubin-Épinay (76160). Conçue de plain-pied, elle inclut deux chambres, une cuisine et une salle de bains.
Le terrain de la propriété est de 800 m².
La maison est neuve.
Il y a des écoles primaires à moins de 10 minutes à pied et, parmi lesquelles l'École Maternelle l'Eau Vive. Niveau transports, on trouve quatre gares à moins de 10 minutes en voiture. Les autoroutes A28 et A150 et les nationales N28 et N338 sont accessibles à moins de 9 km.
Elle est proposée à l'achat pour 260 000 €.
N'hésitez pas à prendre contact avec Sébastien MASSON (06-23-38-14-17) pour tout renseignement sur la maison, sur les modalités de vente ou sur les démarches à suivre. Faites de vos projets immobiliers une réalité avec Maisons Balency Boos.

Annonce proposée par un Agent Commercial Partenaire.

Mentions légales

Terrain proposé par un partenaire foncier selon disponibilités et autorisation de publicité au prix de 145 000 €. Hors droit d'enregistrement et frais de notaire. Maison proposée, avec un contrat de construction de maison individuelle, dans le cadre de la loi du 19/12/1990, au prix de 115 000 € (Hors branchements et raccordements, papiers peints, peintures, revêtement de sol dans les chambres, qui sont chiffrés dans les travaux qui restent à charge du client. Tarif modifiable sans préavis). Étiquette énergie : A. Différents modèles disponibles pour ce terrain. Assurances et garanties du constructeur comprises (RC professionnelle, décennale, dommage ouvrage).

Contactez l'agence de Boos

02 35 80 66 66

    * Champs obligatoires

    Vos informations sont traitées par HEXAOM et transmises à un conseiller commercial qui vous contactera afin de répondre à votre demande. Les plans et images présentés sur notre site sont la propriété d’HEXAOM et ne peuvent pas être reproduits sans son accord. Pour retrouver notre politique de protection des données personnelles et exercer vos droits conformément à la « loi informatique et liberté » cliquez-ici.