Maison neuve à
Saint-Aubin-Épinay (76160) Référence : SEMA9025_3

Prix du projet : Maison avec Terrain

prix 305 000 €

  • 5 pièces
  • 3 chambres
  • Surface maison 76 m2

VENTE : maison de 5 pièces (76 m²) à Saint-Aubin-Épinay
PROCHE DE ROUEN - MAISON 5 PIÈCES NEUVE
À vendre à 8 km de Rouen, Maisons Balency Boos vous propose cette maison de 5 pièces de 76 m² et de 800 m² de terrain à Saint-Aubin-Épinay (76160).
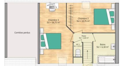
C'est une maison de 2 niveaux. Son intérieur comporte trois chambres, une cuisine et une salle de bains. Cette maison est neuve.
Des écoles primaires se trouvent à moins de 10 minutes à pied, tout comme, parmi lesquelles l'École Maternelle l'Eau Vive. Côté transports en commun, il y a quatre gares à moins de 10 minutes en voiture. Les autoroutes A28 et A150 et les nationales N28 et N338 sont accessibles à moins de 9 km.
Son prix de vente est de 305 000 €.
N'hésitez pas à prendre contact avec Sébastien MASSON (06-23-38-14-17) pour toute question sur la maison, sur les modalités de vente ou sur les démarches à suivre.

Annonce proposée par un Agent Commercial Partenaire.

Mentions légales

Terrain proposé par un partenaire foncier selon disponibilités et autorisation de publicité au prix de 145 000 €. Hors droit d'enregistrement et frais de notaire. Maison proposée, avec un contrat de construction de maison individuelle, dans le cadre de la loi du 19/12/1990, au prix de 160 000 € (Hors branchements et raccordements, papiers peints, peintures, revêtement de sol dans les chambres, qui sont chiffrés dans les travaux qui restent à charge du client. Tarif modifiable sans préavis). Étiquette énergie : A. Différents modèles disponibles pour ce terrain. Assurances et garanties du constructeur comprises (RC professionnelle, décennale, dommage ouvrage).

Contactez l'agence de Boos

02 35 80 66 66

    * Champs obligatoires

    Vos informations sont traitées par HEXAOM et transmises à un conseiller commercial qui vous contactera afin de répondre à votre demande. Les plans et images présentés sur notre site sont la propriété d’HEXAOM et ne peuvent pas être reproduits sans son accord. Pour retrouver notre politique de protection des données personnelles et exercer vos droits conformément à la « loi informatique et liberté » cliquez-ici.