Maison neuve à
Saint-Aubin-Épinay (76160) Référence : SEMA9025_6

Prix du projet : Maison avec Terrain

prix 349 000 €

  • 9 pièces
  • 5 chambres
  • Surface maison 124 m2

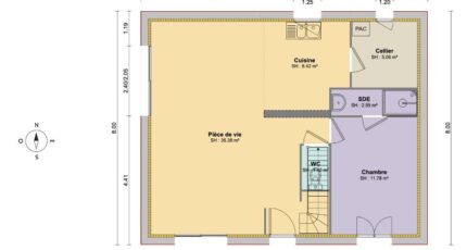
Saint-Aubin-Épinay : maison de 9 pièces (124 m²) en vente
PROCHE DE ROUEN - MAISON 9 PIÈCES NEUVE
En vente : localisée à 8 km de Rouen, votre agence Maisons Balency Boos est heureuse de vous présenter cette maison de 9 pièces de 124 m² et de 800 m² de terrain à Saint-Aubin-Épinay (76160). Elle propose cinq chambres, une cuisine et trois salles de bains.
Cette maison comporte 2 niveaux. Elle est neuve.
Il y a des établissements scolaires maternelles et élémentaires à moins de 10 minutes à pied et, parmi lesquels l'École Maternelle l'Eau Vive. Niveau transports, on trouve quatre gares à moins de 10 minutes en voiture. Les autoroutes A28 et A150 et les nationales N28 et N338 sont accessibles à moins de 9 km.
Elle est à vendre pour la somme de 349 000 €.
N'hésitez pas à prendre contact avec notre agence (Sébastien MASSON : 06-23-38-14-17) pour toute question sur cette maison. Maisons Balency Boos est là pour vous accompagner à toutes les étapes de votre projet.

Annonce proposée par un Agent Commercial Partenaire.

Mentions légales

Terrain proposé par un partenaire foncier selon disponibilités et autorisation de publicité au prix de 145 000 €. Hors droit d'enregistrement et frais de notaire. Maison proposée, avec un contrat de construction de maison individuelle, dans le cadre de la loi du 19/12/1990, au prix de 204 000 € (Hors branchements et raccordements, papiers peints, peintures, revêtement de sol dans les chambres, qui sont chiffrés dans les travaux qui restent à charge du client. Tarif modifiable sans préavis). Étiquette énergie : A. Différents modèles disponibles pour ce terrain. Assurances et garanties du constructeur comprises (RC professionnelle, décennale, dommage ouvrage).

Contactez l'agence de Boos

02 35 80 66 66

    * Champs obligatoires

    Vos informations sont traitées par HEXAOM et transmises à un conseiller commercial qui vous contactera afin de répondre à votre demande. Les plans et images présentés sur notre site sont la propriété d’HEXAOM et ne peuvent pas être reproduits sans son accord. Pour retrouver notre politique de protection des données personnelles et exercer vos droits conformément à la « loi informatique et liberté » cliquez-ici.