Maison neuve à
Saint-Aubin-Épinay (76160) Référence : SEMA9025_7

Prix du projet : Maison avec Terrain

prix 330 000 €

  • 7 pièces
  • 4 chambres
  • Surface maison 91 m2

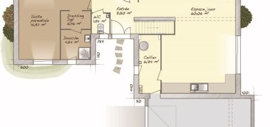
Maison F7 (91 m²) à vendre à Saint-Aubin-Épinay
MAISON 7 PIÈCES NEUVE - PROCHE DE ROUEN
À vendre à deux pas de Rouen, nous sommes ravis de vous proposer cette maison de 7 pièces de 91 m² et de 800 m² de terrain à Saint-Aubin-Épinay (76160).
Il s'agit d'une maison de 2 niveaux. Elle dispose de quatre chambres, d'une cuisine et d'une salle de bains. Cette maison est neuve.
Des établissements scolaires maternelles et élémentaires sont implantés à moins de 10 minutes à pied, tout comme, parmi lesquels l'École Maternelle l'Eau Vive. Niveau transports, il y a quatre gares à moins de 10 minutes en voiture. Les autoroutes A28 et A150 et les nationales N28 et N338 sont accessibles à moins de 9 km.
Elle est à vendre pour la somme de 330 000 €.
Prenez contact avec notre agence (MASSON Sébastien : 06-23-38-14-17) pour tout renseignement sur la maison ou sur les modalités de vente. Faites de vos projets immobiliers une réalité avec Maisons Balency Boos.

Annonce proposée par un Agent Commercial Partenaire.

Mentions légales

Terrain proposé par un partenaire foncier selon disponibilités et autorisation de publicité au prix de 145 000 €. Hors droit d'enregistrement et frais de notaire. Maison proposée, avec un contrat de construction de maison individuelle, dans le cadre de la loi du 19/12/1990, au prix de 185 000 € (Hors branchements et raccordements, papiers peints, peintures, revêtement de sol dans les chambres, qui sont chiffrés dans les travaux qui restent à charge du client. Tarif modifiable sans préavis). Étiquette énergie : A. Différents modèles disponibles pour ce terrain. Assurances et garanties du constructeur comprises (RC professionnelle, décennale, dommage ouvrage).

Contactez l'agence de Boos

02 35 80 66 66

    * Champs obligatoires

    Vos informations sont traitées par HEXAOM et transmises à un conseiller commercial qui vous contactera afin de répondre à votre demande. Les plans et images présentés sur notre site sont la propriété d’HEXAOM et ne peuvent pas être reproduits sans son accord. Pour retrouver notre politique de protection des données personnelles et exercer vos droits conformément à la « loi informatique et liberté » cliquez-ici.