Maison neuve à
Saint-Aubin-Épinay (76160) Référence : SEMA9025_9

Prix du projet : Maison avec Terrain

prix 523 000 €

  • 8 pièces
  • 5 chambres
  • Surface maison 200 m2

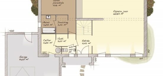
Maison de 8 pièces (200 m²) à vendre à Saint-Aubin-Épinay
PROCHE DE ROUEN - MAISON 8 PIÈCES NEUVE
À vendre : à quelques kilomètres de Rouen, à Saint-Aubin-Épinay (76160), nous vous présentons cette maison de 8 pièces de 200 m². Elle se divise en cinq chambres, une cuisine et deux salles de bains.
Le terrain de la propriété est de 800 m².
Cette maison possède 2 niveaux. Elle est neuve.
Des écoles primaires sont implantées à moins de 10 minutes à pied, tout comme, parmi lesquelles l'École Maternelle l'Eau Vive. Côté transports, il y a quatre gares à moins de 10 minutes en voiture. Les autoroutes A28 et A150 et les nationales N28 et N338 sont accessibles à moins de 9 km.
Son prix de vente est de 523 000 €.
N'hésitez pas à prendre contact avec Sébastien MASSON (tél : 06-23-38-14-17) pour obtenir de plus amples informations sur la maison, sur les modalités de vente et sur les démarches à suivre. Donnez vie à vos projets immobiliers avec Maisons Balency Boos.

Annonce proposée par un Agent Commercial Partenaire.

Mentions légales

Terrain proposé par un partenaire foncier selon disponibilités et autorisation de publicité au prix de 145 000 €. Hors droit d'enregistrement et frais de notaire. Maison proposée, avec un contrat de construction de maison individuelle, dans le cadre de la loi du 19/12/1990, au prix de 378 000 € (Hors branchements et raccordements, papiers peints, peintures, revêtement de sol dans les chambres, qui sont chiffrés dans les travaux qui restent à charge du client. Tarif modifiable sans préavis). Étiquette énergie : A. Différents modèles disponibles pour ce terrain. Assurances et garanties du constructeur comprises (RC professionnelle, décennale, dommage ouvrage).

Contactez l'agence de Boos

02 35 80 66 66

    * Champs obligatoires

    Vos informations sont traitées par HEXAOM et transmises à un conseiller commercial qui vous contactera afin de répondre à votre demande. Les plans et images présentés sur notre site sont la propriété d’HEXAOM et ne peuvent pas être reproduits sans son accord. Pour retrouver notre politique de protection des données personnelles et exercer vos droits conformément à la « loi informatique et liberté » cliquez-ici.