Maison neuve à
Saint-Aubin-Épinay (76160) Référence : KB2410173_2

Prix du projet : Maison avec Terrain

prix 395 000 €

  • 9 pièces
  • 4 chambres
  • Surface maison 186 m2

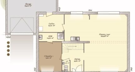
VENTE d'une maison de 9 pièces (186 m²) à Saint-Aubin-Épinay
EMPLACEMENT PRIVILÉGIÉ - MAISON 9 PIÈCES NEUVE
À 8 km de Rouen, en vente bénéficiant d'un emplacement d'exception dans Saint-Aubin-Épinay (76160), nous vous présentons cette maison de 9 pièces de 186 m² et de 1 140 m² de terrain. Son intérieur est composé de quatre chambres, d'une cuisine et de deux salles de bains.
Cette maison possède 2 niveaux. Elle est neuve.
La maison se situe dans un quartier attractif. Des écoles maternelles et élémentaires se trouvent à moins de 10 minutes à pied, tout comme, comme l'École Maternelle l'Eau Vive. Côté transports en commun, il y a quatre gares à moins de 10 minutes en voiture. Les autoroutes A28 et A150 et les nationales N28 et N338 sont accessibles à moins de 9 km.
Elle est à vendre pour la somme de 395 000 €.
Contactez Kamel BAZIZ (tél : 07-80-36-63-82) pour toute information sur la maison. Maisons Balency Boos est là pour vous accompagner dans tous vos projets immobiliers.

Annonce proposée par un Agent Commercial Partenaire.

Mentions légales

Terrain proposé par un partenaire foncier selon disponibilités et autorisation de publicité au prix de 85 000 €. Hors droit d'enregistrement et frais de notaire. Terrain + Maison proposés au prix de 395 000 € (Hors branchements et raccordements, papiers peints, peintures, revêtement de sol dans les chambres. Tarif modifiable sans préavis). Etiquette énergie : A. Différents modèles disponibles pour ce terrain. Assurances et garanties du constructeur (RC professionnelle, décennale, dommage ouvrage, garantie de remboursement de l'acompte, livraison à prix et délai convenu) : https://www.maisons-balency.fr/informations-legales/. HEXAOM Services est enregistré auprès de l'ORIAS en tant que Courtier en financement, Niveau 1, sous le numéro 14001345.

Contactez l'agence de Boos

02 35 80 66 66

    * Champs obligatoires

    Vos informations sont traitées par HEXAOM et transmises à un conseiller commercial qui vous contactera afin de répondre à votre demande. Les plans et images présentés sur notre site sont la propriété d’HEXAOM et ne peuvent pas être reproduits sans son accord. Pour retrouver notre politique de protection des données personnelles et exercer vos droits conformément à la « loi informatique et liberté » cliquez-ici.