Maison neuve à
Saint-Brice-sous-Forêt
(95350) Référence :
CT2352686_1
Prix du projet : Maison avec Terrain
prix 473 120 €
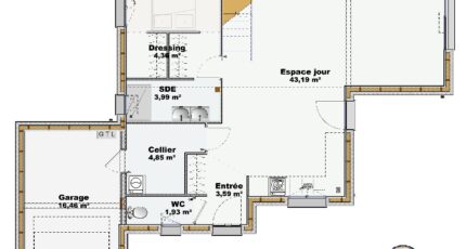
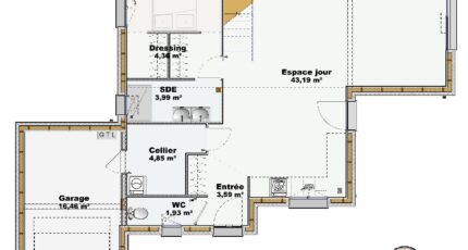
- 6 pièces
- 5 chambres
- Surface maison 124 m2
Saint-Brice-sous-Forêt : maison F6 (114 m²) à vendre
MAISON 6 PIÈCES NEUVE - PROCHE DE PARIS
À quelques minutes de la gare d'Écouen-Ézanville (Paris à 15 min avec le Transilien H), en vente à Saint-Brice-sous-Forêt (95350), notre agence Maisons Balency Baillet-en-France est ravie de vous proposer cette maison de 6 pièces de 114 m² avec vue sur jardin.
Il s'agit d'une maison de 2 niveaux. Elle propose cinq chambres, une cuisine et deux salles de bains. La maison est neuve.
Le terrain de la propriété s'étend sur 550 m².
Il y a l'École Maternelle Léon Rouvrais à moins de 10 minutes à pied. Niveau transports, on trouve le RER D, C et B ainsi que 41 gares à moins de 10 minutes en voiture. On trouve un tennis, une bibliothèque, des commerces, des boulangeries, trois supermarchés, une épicerie et des boucheries-charcuteries à proximité.
Elle est à vendre pour la somme de 473 120 €.
Contactez notre agence (TALAMONI Christophe : 06-49-55-08-27) pour plus d'informations sur cette maison.
Annonce proposée par un Agent Commercial Partenaire.
Mentions légales
Terrain proposé par un partenaire foncier selon disponibilités et autorisation de publicité au prix de 239 000 €. Hors droit d'enregistrement et frais de notaire. Maison proposée, avec un contrat de construction de maison individuelle, dans le cadre de la loi du 19/12/1990, au prix de 234 120 € (Hors branchements et raccordements, papiers peints, peintures, revêtement de sol dans les chambres, qui sont chiffrés dans les travaux qui restent à charge du client. Tarif modifiable sans préavis). Étiquette énergie : A. Différents modèles disponibles pour ce terrain. Assurances et garanties du constructeur comprises (RC professionnelle, décennale, dommage ouvrage).Agence Maisons Balency de Baillet-en-France (95560)
- Téléphone :
- 01 34 46 05 23
- Adressse :
- 81 rue de Paris
95560 Baillet-en-France, France
