Maison neuve à
Saint-Brice-sous-Forêt
(95350) Référence :
CT2352686_2
Prix du projet : Maison avec Terrain
prix 519 800 €
- 7 pièces
- 4 chambres
- Surface maison 160 m2
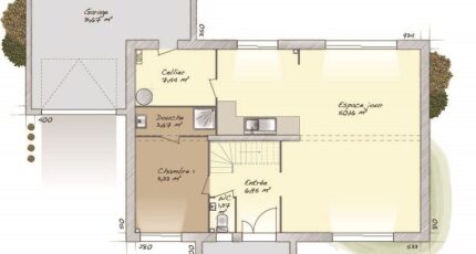
VENTE d'une maison de 7 pièces (160 m²) à Saint-Brice-sous-Forêt
PROCHE DE PARIS - MAISON 7 PIÈCES NEUVE
À vendre : à deux pas de la gare d'Écouen-Ézanville (Paris à 15 min avec le Transilien H), Maisons Balency Baillet-en-France vous propose à Saint-Brice-sous-Forêt (95350), cette maison de 7 pièces de 160 m² et de 550 m² de terrain. Elle se divise en quatre chambres, une cuisine et deux salles de bains.
Il s'agit d'une maison de 2 niveaux. Elle est neuve.
L'École Maternelle Léon Rouvrais est implantée à moins de 10 minutes à pied. Côté transports, on trouve trois lignes de RER (D, C et B) ainsi que 41 gares à moins de 10 minutes en voiture. Il y a un tennis, une bibliothèque, des commerces, des boulangeries, trois supermarchés, des boucheries-charcuteries et une épicerie dans les environs.
Son prix de vente est de 519 800 €.
Contactez Christophe TALAMONI (tél : 06-49-55-08-27) pour toute information sur cette maison. Maisons Balency Baillet-en-France vous accompagne à toutes les étapes de votre projet et dans toutes vos démarches.
Annonce proposée par un Agent Commercial Partenaire.
Mentions légales
Terrain proposé par un partenaire foncier selon disponibilités et autorisation de publicité au prix de 239 000 €. Hors droit d'enregistrement et frais de notaire. Maison proposée, avec un contrat de construction de maison individuelle, dans le cadre de la loi du 19/12/1990, au prix de 280 800 € (Hors branchements et raccordements, papiers peints, peintures, revêtement de sol dans les chambres, qui sont chiffrés dans les travaux qui restent à charge du client. Tarif modifiable sans préavis). Étiquette énergie : A. Différents modèles disponibles pour ce terrain. Assurances et garanties du constructeur comprises (RC professionnelle, décennale, dommage ouvrage).Agence Maisons Balency de Baillet-en-France (95560)
- Téléphone :
- 01 34 46 05 23
- Adressse :
- 81 rue de Paris
95560 Baillet-en-France, France
