Maison neuve à
Saint-Denis-sur-Scie (76890) Référence : SEMA9014_11

Prix du projet : Maison avec Terrain

prix 400 000 €

  • 7 pièces
  • 5 chambres
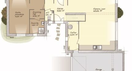
  • Surface maison 170 m2

Maison F7 (170 m²) en vente à Saint-Denis-sur-Scie
PROCHE DE ROUEN - MAISON 7 PIÈCES NEUVE
En vente : localisée à 25 km de la Manche et à 29 km de Rouen, notre agence Maisons Balency Boos est ravie de vous présenter à Saint-Denis-sur-Scie (76890), cette maison de 7 pièces de plain-pied de 170 m². Conçue de plain-pied, elle compte cinq chambres, une cuisine et trois salles de bains.
Le terrain de la maison s'étend sur 1 500 m².
La maison est neuve.
Il y a trois établissements scolaires à moins de 10 minutes en voiture,, parmi lesquels le Collège René Coty et le Collège Jean Malaurie et une crèche à moins de 10 minutes à pied. Côté transports, on trouve trois gares (Auffay, Saint-Victor-l'Abbaye et Longueville-sur-Scie) à moins de 10 minutes en voiture. Les autoroutes A151 et A29 et la nationale N27 sont accessibles à moins de 8 km. Il y a des tennis, des bibliothèques, un bassin de natation, des commerces, trois supermarchés, des boulangeries, des boucheries-charcuteries et deux bureaux de poste dans les environs. Ne manquez pas le marché Place Blekedé chaque vendredi matin.
Elle est proposée à l'achat pour 400 000 €.
Contactez Sébastien MASSON (tél : 06-23-38-14-17) pour toute question sur cette maison, sur les modalités de vente ou sur les démarches à suivre. Faites de vos projets immobiliers une réalité avec Maisons Balency Boos.

Annonce proposée par un Agent Commercial Partenaire.

Mentions légales

Terrain proposé par un partenaire foncier selon disponibilités et autorisation de publicité au prix de 70 000 €. Hors droit d'enregistrement et frais de notaire. Maison proposée, avec un contrat de construction de maison individuelle, dans le cadre de la loi du 19/12/1990, au prix de 330 000 € (Hors branchements et raccordements, papiers peints, peintures, revêtement de sol dans les chambres, qui sont chiffrés dans les travaux qui restent à charge du client. Tarif modifiable sans préavis). Étiquette énergie : A. Différents modèles disponibles pour ce terrain. Assurances et garanties du constructeur comprises (RC professionnelle, décennale, dommage ouvrage).

Contactez l'agence de Boos

02 35 80 66 66

    * Champs obligatoires

    Vos informations sont traitées par HEXAOM et transmises à un conseiller commercial qui vous contactera afin de répondre à votre demande. Les plans et images présentés sur notre site sont la propriété d’HEXAOM et ne peuvent pas être reproduits sans son accord. Pour retrouver notre politique de protection des données personnelles et exercer vos droits conformément à la « loi informatique et liberté » cliquez-ici.