Maison neuve à
Saint-Denis-sur-Scie (76890) Référence : SEMA9014_3

Prix du projet : Maison avec Terrain

prix 220 000 €

  • 5 pièces
  • 3 chambres
  • Surface maison 76 m2

Maison T5 (76 m²) à vendre à Saint-Denis-sur-Scie
PROCHE DE ROUEN - MAISON 5 PIÈCES NEUVE
À 25 km de la Manche et à deux pas de Rouen, nous sommes ravis de vous proposer cette maison de 5 pièces de 76 m² à vendre à Saint-Denis-sur-Scie (76890).
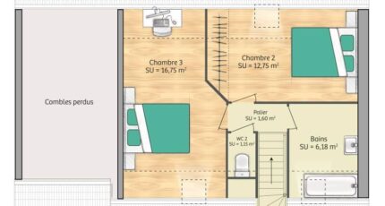
Cette maison comporte 2 niveaux. Son intérieur comporte trois chambres, une cuisine et une salle de bains. Cette maison est neuve.
Le terrain du bien est de 1 500 m².
Il y a trois établissements scolaires à moins de 10 minutes en voiture, dont le Collège René Coty et le Collège Jean Malaurie et une structure d'accueil pour les tout-petits à moins de 10 minutes à pied. Côté transports, on trouve les gares Auffay, Saint-Victor-l'Abbaye et Longueville-sur-Scie à moins de 10 minutes en voiture. Les autoroutes A151 et A29 et la nationale N27 sont accessibles à moins de 8 km. Il y a des tennis, des bibliothèques, un bassin de natation, des commerces, trois supermarchés, des boulangeries, des boucheries-charcuteries et quatre épiceries à quelques minutes à peine. Ne manquez pas le marché Place Blekedé chaque vendredi matin.
Elle est à vendre pour la somme de 220 000 €.
Contactez Sébastien MASSON (tél : 06-23-38-14-17) pour obtenir de plus amples renseignements sur cette propriété, sur les modalités de vente ou sur les démarches à suivre. Maisons Balency Boos est là pour vous accompagner à toutes les étapes de l'achat.

Annonce proposée par un Agent Commercial Partenaire.

Mentions légales

Terrain proposé par un partenaire foncier selon disponibilités et autorisation de publicité au prix de 70 000 €. Hors droit d'enregistrement et frais de notaire. Maison proposée, avec un contrat de construction de maison individuelle, dans le cadre de la loi du 19/12/1990, au prix de 150 000 € (Hors branchements et raccordements, papiers peints, peintures, revêtement de sol dans les chambres, qui sont chiffrés dans les travaux qui restent à charge du client. Tarif modifiable sans préavis). Étiquette énergie : A. Différents modèles disponibles pour ce terrain. Assurances et garanties du constructeur comprises (RC professionnelle, décennale, dommage ouvrage).

Contactez l'agence de Boos

02 35 80 66 66

    * Champs obligatoires

    Vos informations sont traitées par HEXAOM et transmises à un conseiller commercial qui vous contactera afin de répondre à votre demande. Les plans et images présentés sur notre site sont la propriété d’HEXAOM et ne peuvent pas être reproduits sans son accord. Pour retrouver notre politique de protection des données personnelles et exercer vos droits conformément à la « loi informatique et liberté » cliquez-ici.