Maison neuve à
Saint-Denis-sur-Scie (76890) Référence : SEMA9014_5

Prix du projet : Maison avec Terrain

prix 194 000 €

  • 6 pièces
  • 3 chambres
  • Surface maison 76 m2

Saint-Denis-sur-Scie : maison T6 (76 m²) à vendre
MAISON 6 PIÈCES NEUVE - PROCHE DE ROUEN
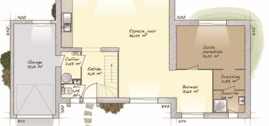
En vente à 25 km de la Manche et à 29 km de Rouen, à Saint-Denis-sur-Scie (76890), nous sommes ravis de vous proposer cette maison de 6 pièces de plain-pied de 76 m² et de 1 500 m² de terrain. Elle se divise en trois chambres, une cuisine et une salle de bains.
La maison est neuve.
Il y a trois établissements scolaires à moins de 10 minutes en voiture,, parmi lesquels le Collège René Coty et le Collège Jean Malaurie et une crèche à moins de 10 minutes à pied. Côté transports, on trouve les gares Auffay, Saint-Victor-l'Abbaye et Longueville-sur-Scie à moins de 10 minutes en voiture. Les autoroutes A151 et A29 et la nationale N27 sont accessibles à moins de 8 km. Il y a des tennis, des bibliothèques, un bassin de natation, des commerces, trois supermarchés, des boulangeries, des boucheries-charcuteries et deux bureaux de poste à proximité du bien. Enfin, le marché Place Blekedé a lieu tous les vendredis matin.
Son prix de vente est de 194 000 €.
Contactez Sébastien MASSON (tél : 06-23-38-14-17) pour plus de renseignements sur la maison. Maisons Balency Boos est là pour vous accompagner dans tous vos projets immobiliers.

Annonce proposée par un Agent Commercial Partenaire.

Mentions légales

Terrain proposé par un partenaire foncier selon disponibilités et autorisation de publicité au prix de 70 000 €. Hors droit d'enregistrement et frais de notaire. Terrain + Maison proposés au prix de 124 000 € (Hors branchements et raccordements, papiers peints, peintures, revêtement de sol dans les chambres. Tarif modifiable sans préavis). Etiquette énergie : A. Différents modèles disponibles pour ce terrain. Assurances et garanties du constructeur (RC professionnelle, décennale, dommage ouvrage, garantie de remboursement de l'acompte, livraison à prix et délai convenu) : https://www.maisons-balency.fr/informations-legales/. HEXAOM Services est enregistré auprès de l'ORIAS en tant que Courtier en financement, Niveau 1, sous le numéro 14001345.

Contactez l'agence de Boos

02 35 80 66 66

    * Champs obligatoires

    Vos informations sont traitées par HEXAOM et transmises à un conseiller commercial qui vous contactera afin de répondre à votre demande. Les plans et images présentés sur notre site sont la propriété d’HEXAOM et ne peuvent pas être reproduits sans son accord. Pour retrouver notre politique de protection des données personnelles et exercer vos droits conformément à la « loi informatique et liberté » cliquez-ici.