Maison neuve à
Saint-Denis-sur-Scie (76890) Référence : SEMA9014_6

Prix du projet : Maison avec Terrain

prix 229 000 €

  • 6 pièces
  • 4 chambres
  • Surface maison 89 m2

Saint-Denis-sur-Scie : maison T6 (89 m²) à vendre
PROCHE DE ROUEN - MAISON 6 PIÈCES NEUVE
En vente à 25 km de la Manche et à quelques kilomètres de Rouen, notre agence Maisons Balency Boos est heureuse de vous proposer cette maison de 6 pièces de 89 m² à Saint-Denis-sur-Scie (76890).
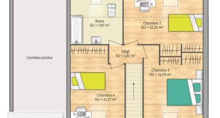
C'est une maison de 2 niveaux. Son intérieur propose quatre chambres, une cuisine et une salle de bains. La maison est neuve.
Le terrain du bien est de 1 500 m².
Trois établissements scolaires sont implantés à moins de 10 minutes en voiture,, parmi lesquels le Collège René Coty et le Collège Jean Malaurie, tout comme une structure d'accueil pour les enfants en bas âge à moins de 10 minutes à pied. Niveau transports en commun, il y a trois gares (Auffay, Saint-Victor-l'Abbaye et Longueville-sur-Scie) à moins de 10 minutes en voiture. Les autoroutes A151 et A29 et la nationale N27 sont accessibles à moins de 8 km. On trouve des tennis, des bibliothèques, un bassin de natation, des commerces, trois supermarchés, des boulangeries, quatre épiceries et des boucheries-charcuteries à proximité. Le marché Place Blekedé a lieu chaque vendredi matin.
Elle est à vendre pour la somme de 229 000 €.
Prenez contact avec notre agence (MASSON Sébastien : 06-23-38-14-17) pour toute information sur la maison, sur les démarches à suivre ou sur les modalités de vente. Faites de vos projets immobiliers une réalité avec Maisons Balency Boos.

Annonce proposée par un Agent Commercial Partenaire.

Mentions légales

Terrain proposé par un partenaire foncier selon disponibilités et autorisation de publicité au prix de 70 000 €. Hors droit d'enregistrement et frais de notaire. Maison proposée, avec un contrat de construction de maison individuelle, dans le cadre de la loi du 19/12/1990, au prix de 159 000 € (Hors branchements et raccordements, papiers peints, peintures, revêtement de sol dans les chambres, qui sont chiffrés dans les travaux qui restent à charge du client. Tarif modifiable sans préavis). Étiquette énergie : A. Différents modèles disponibles pour ce terrain. Assurances et garanties du constructeur comprises (RC professionnelle, décennale, dommage ouvrage).

Contactez l'agence de Boos

02 35 80 66 66

    * Champs obligatoires

    Vos informations sont traitées par HEXAOM et transmises à un conseiller commercial qui vous contactera afin de répondre à votre demande. Les plans et images présentés sur notre site sont la propriété d’HEXAOM et ne peuvent pas être reproduits sans son accord. Pour retrouver notre politique de protection des données personnelles et exercer vos droits conformément à la « loi informatique et liberté » cliquez-ici.