Maison neuve à
Saint-Denis-sur-Scie (76890) Référence : SEMA9014_7

Prix du projet : Maison avec Terrain

prix 264 000 €

  • 9 pièces
  • 5 chambres
  • Surface maison 124 m2

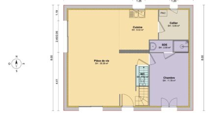
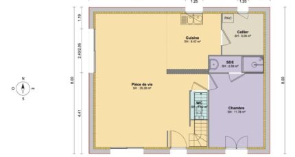
VENTE d'une maison de 9 pièces (124 m²) à Saint-Denis-sur-Scie
MAISON 9 PIÈCES NEUVE - PROCHE DE ROUEN
À 25 km de la Manche et à 29 km de Rouen, votre agence Maisons Balency Boos est heureuse de vous présenter en vente à Saint-Denis-sur-Scie (76890), cette maison de 9 pièces de 124 m². Elle se divise en cinq chambres, une cuisine et trois salles de bains.
Le terrain de cette maison est de 1 500 m².
Cette maison compte 2 niveaux. Elle est neuve.
Trois établissements scolaires sont implantés à moins de 10 minutes en voiture, dont le Collège René Coty et le Collège Jean Malaurie, tout comme une crèche à moins de 10 minutes à pied. Niveau transports en commun, il y a trois gares (Auffay, Saint-Victor-l'Abbaye et Longueville-sur-Scie) à moins de 10 minutes en voiture. Les autoroutes A151 et A29 et la nationale N27 sont accessibles à moins de 8 km. On trouve des tennis, des bibliothèques, un bassin de natation, des commerces, trois supermarchés, des boulangeries, des boucheries-charcuteries et deux bureaux de poste dans les environs. Enfin, le marché Place Blekedé anime le quartier chaque vendredi matin.
Son prix de vente est de 264 000 €.
Contactez notre constructeur (MASSON Sébastien : 06-23-38-14-17) pour toute question sur cette maison ou sur les démarches à suivre.

Annonce proposée par un Agent Commercial Partenaire.

Mentions légales

Terrain proposé par un partenaire foncier selon disponibilités et autorisation de publicité au prix de 70 000 €. Hors droit d'enregistrement et frais de notaire. Maison proposée, avec un contrat de construction de maison individuelle, dans le cadre de la loi du 19/12/1990, au prix de 194 000 € (Hors branchements et raccordements, papiers peints, peintures, revêtement de sol dans les chambres, qui sont chiffrés dans les travaux qui restent à charge du client. Tarif modifiable sans préavis). Étiquette énergie : A. Différents modèles disponibles pour ce terrain. Assurances et garanties du constructeur comprises (RC professionnelle, décennale, dommage ouvrage).

Contactez l'agence de Boos

02 35 80 66 66

    * Champs obligatoires

    Vos informations sont traitées par HEXAOM et transmises à un conseiller commercial qui vous contactera afin de répondre à votre demande. Les plans et images présentés sur notre site sont la propriété d’HEXAOM et ne peuvent pas être reproduits sans son accord. Pour retrouver notre politique de protection des données personnelles et exercer vos droits conformément à la « loi informatique et liberté » cliquez-ici.