Maison neuve à
Saint-Denis-sur-Scie (76890) Référence : SEMA9014_9

Prix du projet : Maison avec Terrain

prix 344 000 €

  • 5 pièces
  • 3 chambres
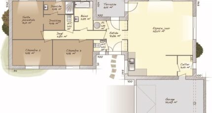
  • Surface maison 120 m2

VENTE : maison de 5 pièces (120 m²) à Saint-Denis-sur-Scie
MAISON 5 PIÈCES NEUVE - PROCHE DE ROUEN
En vente : située à 25 km de la Manche et à quelques kilomètres de Rouen, votre agence Maisons Balency Boos est ravie de vous proposer cette maison de 5 pièces de plain-pied de 120 m² et de 1 500 m² de terrain à Saint-Denis-sur-Scie (76890). Son intérieur inclut trois chambres, une cuisine et deux salles de bains.
Cette maison est neuve.
Trois établissements scolaires sont implantés à moins de 10 minutes en voiture,, parmi lesquels le Collège René Coty et le Collège Jean Malaurie, tout comme une crèche à moins de 10 minutes à pied. Côté transports, il y a les gares Auffay, Saint-Victor-l'Abbaye et Longueville-sur-Scie à moins de 10 minutes en voiture. Les autoroutes A151 et A29 et la nationale N27 sont accessibles à moins de 8 km. On trouve des tennis, des bibliothèques, un bassin de natation, des commerces, trois supermarchés, des boulangeries, des boucheries-charcuteries et deux bureaux de poste à quelques minutes à peine. Le marché Place Blekedé anime le quartier chaque vendredi matin.
Il est à vendre pour la somme de 344 000 €.
Prenez contact avec notre constructeur (Sébastien MASSON : 06-23-38-14-17) pour toute information sur cette maison. Maisons Balency Boos vous accompagne à toutes les étapes de votre projet et dans toutes vos démarches.

Annonce proposée par un Agent Commercial Partenaire.

Mentions légales

Terrain proposé par un partenaire foncier selon disponibilités et autorisation de publicité au prix de 70 000 €. Hors droit d'enregistrement et frais de notaire. Maison proposée, avec un contrat de construction de maison individuelle, dans le cadre de la loi du 19/12/1990, au prix de 274 000 € (Hors branchements et raccordements, papiers peints, peintures, revêtement de sol dans les chambres, qui sont chiffrés dans les travaux qui restent à charge du client. Tarif modifiable sans préavis). Étiquette énergie : A. Différents modèles disponibles pour ce terrain. Assurances et garanties du constructeur comprises (RC professionnelle, décennale, dommage ouvrage).

Contactez l'agence de Boos

02 35 80 66 66

    * Champs obligatoires

    Vos informations sont traitées par HEXAOM et transmises à un conseiller commercial qui vous contactera afin de répondre à votre demande. Les plans et images présentés sur notre site sont la propriété d’HEXAOM et ne peuvent pas être reproduits sans son accord. Pour retrouver notre politique de protection des données personnelles et exercer vos droits conformément à la « loi informatique et liberté » cliquez-ici.