Maison neuve à
Saint-Escobille
(91410) Référence :
PM2314401_3
Prix du projet : Maison avec Terrain
prix 359 000 €
- 7 pièces
- 5 chambres
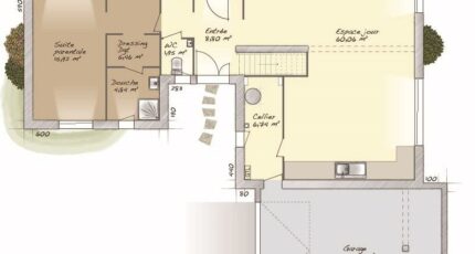
- Surface maison 170 m2
Saint-Escobille (91410), en Île de France, à partir de 359 000 €
Villa Haut-de-Gamme de 170 m² des Maisons Balency Ormoy à bâtir sur un grand terrain viabilisé de 623 m²
Faites-nous confiance pour vous réaliser votre futur chez-vous dans des conditions optimales ; nos constructions respectent les dernières normes RE2020, garantissant ainsi des performances énergétiques optimales (score DPE A ou B), ainsi qu'une haute qualité de construction.
Appelez notre conseiller de l'Agence d'Ormoy sans plus attendre au 09 67 70 15 81 afin de concrétiser votre nouveau projet de vie !
MAISONS BALENCY D'ORMOY, 23 chemin de Tournenfils, 91540 Ormoy
Annonce proposée par un Agent Commercial Partenaire.
Mentions légales
Terrain proposé par un partenaire foncier selon disponibilités et autorisation de publicité au prix de 79 000 €. Hors droit d'enregistrement et frais de notaire. Maison proposée, avec un contrat de construction de maison individuelle, dans le cadre de la loi du 19/12/1990, au prix de 280 000 € (Hors branchements et raccordements, papiers peints, peintures, revêtement de sol dans les chambres, qui sont chiffrés dans les travaux qui restent à charge du client. Tarif modifiable sans préavis). Étiquette énergie : A. Différents modèles disponibles pour ce terrain. Assurances et garanties du constructeur comprises (RC professionnelle, décennale, dommage ouvrage).Agence Maisons Balency de Ormoy (91540)
- Téléphone :
- 09 67 70 15 81
- Adressse :
- 23 chemin de Tournenfils - 1er étage
91540 Ormoy, France
