Maison neuve à
Saint-Étienne-du-Vauvray (27430) Référence : KXA2388085_1

Prix du projet : Maison avec Terrain

prix 399 000 €

  • 7 pièces
  • 5 chambres
  • Surface maison 170 m2

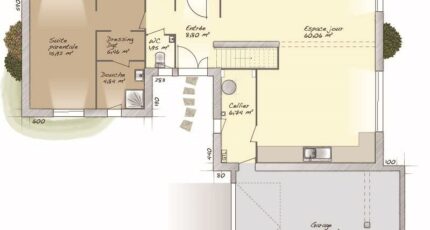
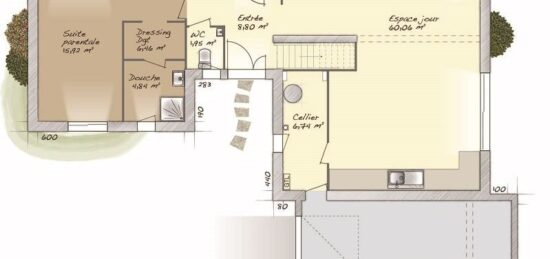
Maison T7 (170 m²) en vente à Saint-Étienne-du-Vauvray
MAISON 7 PIÈCES NEUVE - PROCHE DE ROUEN
À quelques kilomètres de Rouen, en vente à Saint-Étienne-du-Vauvray (27430), Maisons Balency Boos vous présente cette maison de 7 pièces de plain-pied de 170 m².
Conçue de plain-pied, elle compte cinq chambres, une cuisine et trois salles de bains. Cette maison est neuve.
Le terrain du bien est de 700 m².
Une école primaire est implantée dans le quartier. Côté transports en commun, il y a trois gares (Saint-Pierre-du-Vauvray, Val-de-Reuil et Pont-de-l'Arche) à moins de 10 minutes en voiture. Les autoroutes A13 et A154 et la nationale N154 sont accessibles à moins de 9 km. On trouve un commerce dans les environs.
Son prix de vente est de 399 000 €.
Prenez contact avec Kévin XAVIER ALVES (06-58-91-13-87) pour toute question sur la maison, sur les démarches à suivre ou sur les modalités de vente.

Annonce proposée par un Agent Commercial Partenaire.

Mentions légales

Terrain proposé par un partenaire foncier selon disponibilités et autorisation de publicité au prix de 80 000 €. Hors droit d'enregistrement et frais de notaire. Terrain + Maison proposés au prix de 319 000 € (Hors branchements et raccordements, papiers peints, peintures, revêtement de sol dans les chambres. Tarif modifiable sans préavis). Etiquette énergie : A. Différents modèles disponibles pour ce terrain. Assurances et garanties du constructeur (RC professionnelle, décennale, dommage ouvrage, garantie de remboursement de l'acompte, livraison à prix et délai convenu) : https://www.maisons-balency.fr/informations-legales/. HEXAOM Services est enregistré auprès de l'ORIAS en tant que Courtier en financement, Niveau 1, sous le numéro 14001345.

Contactez l'agence de Boos

02 35 80 66 66

    * Champs obligatoires

    Vos informations sont traitées par HEXAOM et transmises à un conseiller commercial qui vous contactera afin de répondre à votre demande. Les plans et images présentés sur notre site sont la propriété d’HEXAOM et ne peuvent pas être reproduits sans son accord. Pour retrouver notre politique de protection des données personnelles et exercer vos droits conformément à la « loi informatique et liberté » cliquez-ici.