Maison neuve à
Saint-Fargeau-Ponthierry
(77310) Référence :
KM2321721_3
Prix du projet : Maison avec Terrain
prix 350 000 €
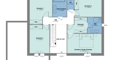
- 6 pièces
- 4 chambres
- Surface maison 136 m2
Opportunité UNIQUE : Terrain à Bâtir Exceptionnel à Saint-Fargeau-Ponthierry (77)
Construisez votre Maisons Balency. Saisissez l'opportunité d'acquérir une parcelle idéalement située sur la commune prisée de Saint-Fargeau-Ponthierry. Ce terrain est parfait pour concrétiser votre projet de construction neuve et sur-mesure.
Les Avantages de Saint-Fargeau-Ponthierry : Une Qualité de Vie Incomparable Profitez d'un cadre de vie alliant la tranquillité de la nature et la proximité des commodités
Transport & Accès :Gare SNCF : Ligne R (Paris Gare de Lyon en moins d'1 heure).Proximité des grands axes routiers (A6).Desserte bus locales.Commerces & Services
Coeur de ville dynamique, commerces de proximité, supermarchés.Éducation Complète sur Place : Écoles maternelles, primaires, Collège et Lycée facilement accessibles, assurant un parcours scolaire complet pour vos enfants.Loisirs & Environnement. Proximité de la forêt de Fontainebleau, bords de Seine, infrastructures sportives.
Exemple Terrain + construction de Votre Projet de Construction en Toute Sérénité avec Maisons Balency Ormoy.
Ce terrain est l'endroit idéal pour concevoir et construire votre future maison avec Maisons Balency, groupe Hexaôm,1er Constructeur de Maisons Individuelles en France.
Exemple de Projet : (Terrain + Construction ) : À partir de*, hors frais de notaire, frais d'adaptations, de raccordement et branchement conforme à la RE2020. Le coût total et les caractéristiques seront ajustés après étude personnalisée.
Pourquoi choisir notre agence d'Ormoy Expertise Locale : Notre équipe, forte de plus de 25 ans d'expérience dans l'architecture et la construction, vous accompagne de A à Z.Projet Personnalisé.
Nous vous garantissons un chiffrage total transparent (Terrain + Construction + Frais + Taxes) et sécurisé par un CCMI.
Nous réalisons l'étude du PLU et le dessin (plans 2D / insertions 3D) de votre future maison.Engagement Qualité.
Notre adage : « le diable se cache dans les détails ».
Mentions légales
Terrain proposé par un partenaire foncier selon disponibilités et autorisation de publicité au prix de 105 000 €. Hors droit d'enregistrement et frais de notaire. Terrain + Maison proposés au prix de 350 000 € (Hors branchements et raccordements, papiers peints, peintures, revêtement de sol dans les chambres. Tarif modifiable sans préavis). Etiquette énergie : A. Différents modèles disponibles pour ce terrain. Assurances et garanties du constructeur (RC professionnelle, décennale, dommage ouvrage, garantie de remboursement de l'acompte, livraison à prix et délai convenu) : https://www.maisons-balency.fr/informations-legales/. HEXAOM Services est enregistré auprès de l'ORIAS en tant que Courtier en financement, Niveau 1, sous le numéro 14001345.Agence Maisons Balency de Ormoy (91540)
- Téléphone :
- 09 67 70 15 81
- Adressse :
- 23 chemin de Tournenfils - 1er étage
91540 Ormoy, France
