Maison neuve à
Saint-Fargeau-Ponthierry
(77310) Référence :
KM2321727_1
Prix du projet : Maison avec Terrain
prix 435 000 €
- 7 pièces
- 4 chambres
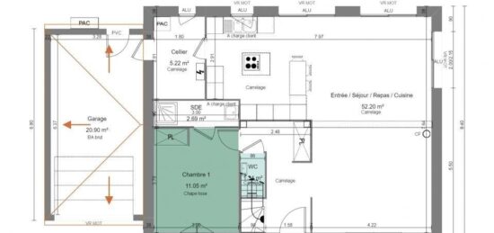
- Surface maison 157 m2
Opportunité RARE à Saint-Fargeau-Ponthierry (77) !
Élégante Demeure Contemporaine de 157 m² à bâtir par les Maisons Balency d'Ormoy sur un terrain de 274 m²
Saisissez l'occasion de devenir propriétaire en Île de France, au coeur de la Seine et Marne, à partir de 435 000 € (terrain + maison, hors frais annexes) !
Saint-Fargeau-Ponthierry vous offrira une qualité de vie incomparable avec ses commodités. La ligne R vous permettra de rejoindre Paris Gare de Lyon en moins d'une heure, tout comme l'A6, aisément accessible.
Bénéficiez également de la présence de plusieurs écoles maternelles et primaires, d'un collège, ainsi que d'un lycée à proximité immédiate ou facilement accessible.
Profitez de la célèbre Forêt de Fontainebleau, des bords de Seine, ainsi que d'infrastructures sportives et culturelles dans les environs.
Ce terrain est l'endroit idéal pour concevoir et construire votre future chez-vous avec Les Maisons Balency d'Ormoy, (Groupe Hexaôm, 1ᵉʳ Constructeur de Maisons Individuelles en France).
Pourquoi choisir notre agence d'Ormoy (23 chemin de Tournenfils, 91540 ORMOY) ?
- Une Expertise Locale : Notre équipe, forte de plus de 25 ans d'expérience dans l'architecture et la construction, vous accompagne de A à Z.
- Un Projet Personnalisé : Nous réaliserons pour vous une étude approfondie du PLU et des documents administratifs, un dessin 2D / insertion 3D réaliste de votre projet, et un chiffrage transparent (Terrain + Construction + Frais + Taxes) afin de sécuriser votre acquisition via un CCMI (Contrat de Construction de Maison Individuelle).
- Un Engagement Qualité : Notre adage : « le diable se cache dans les détails ». Nous garantissons une construction sans surprise et respectueuse de la confiance de nos clients.
- Des possibilités d'Investissement Locatif : Forte Rentabilité
Grâce à l'attractivité de Saint-Fargeau-Ponthierry (proximité de Paris, cadre de vie, écoles), ce secteur est très recherché. Un investissement immobilier neuf of
Mentions légales
Terrain proposé par un partenaire foncier selon disponibilités et autorisation de publicité au prix de 105 000 €. Hors droit d'enregistrement et frais de notaire. Terrain + Maison proposés au prix de 330 000 € (Hors branchements et raccordements, papiers peints, peintures, revêtement de sol dans les chambres. Tarif modifiable sans préavis). Etiquette énergie : A. Différents modèles disponibles pour ce terrain. Assurances et garanties du constructeur (RC professionnelle, décennale, dommage ouvrage, garantie de remboursement de l'acompte, livraison à prix et délai convenu) : https://www.maisons-balency.fr/informations-legales/. HEXAOM Services est enregistré auprès de l'ORIAS en tant que Courtier en financement, Niveau 1, sous le numéro 14001345.Agence Maisons Balency de Ormoy (91540)
- Téléphone :
- 09 67 70 15 81
- Adressse :
- 23 chemin de Tournenfils - 1er étage
91540 Ormoy, France
