Maison neuve à
Saint-Fargeau-Ponthierry
(77310) Référence :
PM2321558_2
Prix du projet : Maison avec Terrain
prix 473 000 €
- 6 pièces
- 5 chambres
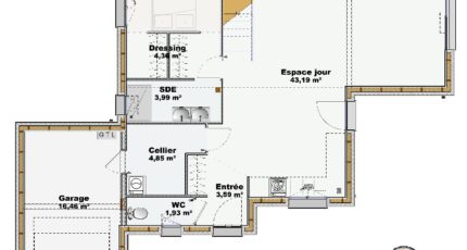
- Surface maison 114 m2
🏡 Maison Environnementale Haut-de-Gamme en bois - 114 m² à Saint-Fargeau-Ponthierry (77310)
À partir de 473 000 €, découvrez cette magnifique maison en ossature bois de 5 chambres et de 2 salles-de-bains, à bâtir sur un terrain constructible de 508 m² situé à Saint-Fargeau-Ponthierry, en Seine-et-Marne. Conçue par Les Maisons Balency d'Ormoy, cette demeure associe élégance contemporaine, confort absolu et respect de l'environnement.
Pensée pour aller au-delà des standards actuels, cette construction bois haut de gamme offre un habitat à la fois écologique et économique. Grâce à une conception optimisée et à une isolation renforcée, elle garantit des performances thermiques et acoustiques exceptionnelles, avec une résistance près de deux fois supérieure à celle d'un mur traditionnel. En limitant les déperditions d'énergie et en optimisant la gestion thermique, elle assure un confort de vie idéal en été comme en hiver tout en réduisant considérablement la consommation d'énergie.
Le choix du bois, issu de forêts éco-gérées, permet une réduction de 65 % des déchets sur le chantier et un impact environnemental inférieur de 60 % à celui d'une maison classique. Matériau naturel et à bilan carbone positif, le bois offre une isolation deux fois plus performante que le béton ou la brique, sans nécessiter d'entretien particulier. La construction bénéficie d'une conception et d'un assemblage industrialisés - murs, plancher, charpente et menuiseries - garantissant une qualité de fabrication irréprochable et un montage ultra-rapide, en seulement une journée sur le chantier.
Les Maisons Balency d'Ormoy, reconnues pour leur savoir-faire et la qualité certifiée de leurs réalisations françaises, vous accompagnent dans chaque étape de votre projet : étude personnalisée, aide à la recherche du terrain, conception sur mesure et suivi administratif complet.
Idéalement située à Saint-Fargeau-Ponthierry (77310), la propriété bénéficie d'un environnement verdoyant et pais
Mentions légales
Terrain proposé par un partenaire foncier selon disponibilités et autorisation de publicité au prix de 160 000 €. Hors droit d'enregistrement et frais de notaire. Maison proposée, avec un contrat de construction de maison individuelle, dans le cadre de la loi du 19/12/1990, au prix de 313 000 € (Hors branchements et raccordements, papiers peints, peintures, revêtement de sol dans les chambres, qui sont chiffrés dans les travaux qui restent à charge du client. Tarif modifiable sans préavis). Étiquette énergie : A. Différents modèles disponibles pour ce terrain. Assurances et garanties du constructeur comprises (RC professionnelle, décennale, dommage ouvrage).Agence Maisons Balency de Ormoy (91540)
- Téléphone :
- 09 67 70 15 81
- Adressse :
- 23 chemin de Tournenfils - 1er étage
91540 Ormoy, France
