Maison neuve à
Saint-Georges-d'Orques
(34680) Référence :
CJ2414909_2
Prix du projet : Maison avec Terrain
prix 430 000 €
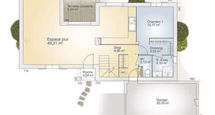
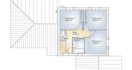
- 6 pièces
- 4 chambres
- Surface maison 125 m2
Saint-Georges-d'Orques : maison T6 (125 m²) en vente
EMPLACEMENT PRIVILÉGIÉ - MAISON 6 PIÈCES NEUVE
À 18 km de la côte méditerranéenne et à 8 km de Montpellier, laissez vous charmer par à vendre, bénéficiant d'un emplacement privilégié dans Saint-Georges-d'Orques (34680), cette maison de 6 pièces de 125 m² et de 550 m² de terrain.
C'est une maison de 2 niveaux. Elle dispose de quatre chambres, d'une cuisine et de deux salles de bains. La maison est neuve.
Le bien se trouve dans un quartier attractif. L'École Maternelle les Pilettes, l'École Primaire Privée Saint-Louis, le Collège Privé Saint Charles et l'École Élémentaire Jean Jaurés y sont implantés. Côté transports, il y a la gare Montpellier Saint-Roch à moins de 10 minutes en voiture. Les autoroutes A750 et A709 et la nationale N109 sont accessibles à moins de 8 km. On trouve une boulangerie à quelques minutes à peine.
Son prix de vente est de 430 000 €.
N'hésitez pas à prendre contact avec notre agence (Cédric : 06-30-92-83-25) pour toute question sur la maison ou sur les démarches à suivre.
Mentions légales
Terrain proposé par un partenaire foncier selon disponibilités et autorisation de publicité au prix de 210 000 €. Hors droit d'enregistrement et frais de notaire. Terrain + Maison proposés au prix de 430 000 € (Hors branchements et raccordements, papiers peints, peintures, revêtement de sol dans les chambres. Tarif modifiable sans préavis). Etiquette énergie : A. Différents modèles disponibles pour ce terrain. Assurances et garanties du constructeur (RC professionnelle, décennale, dommage ouvrage, garantie de remboursement de l'acompte, livraison à prix et délai convenu) : https://www.maisons-balency.fr/informations-legales/. HEXAOM Services est enregistré auprès de l'ORIAS en tant que Courtier en financement, Niveau 1, sous le numéro 14001345.Agence Maisons Balency de Castries (34160)
- Téléphone :
- 04 99 62 92 10
- Adressse :
- 138, avenue de la Royale
34160 Castries, France
