Maison neuve à
Saint-Georges-Motel (27710) Référence : KD2373413_1

Prix du projet : Maison avec Terrain

prix 342 810 €

  • 5 pièces
  • 3 chambres
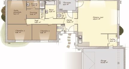
  • Surface maison 120 m2

VENTE : maison F5 (120 m²) à Saint-Georges-Motel
MAISON 5 PIÈCES NEUVE - PROCHE D'ÉVREUX
Proche du Transilien N (gare de Dreux, 60 min de Paris), nous sommes heureux de vous proposer cette maison de 5 pièces de plain-pied de 120 m² en vente à Saint-Georges-Motel (27710). Conçue de plain-pied, elle propose trois chambres, une cuisine et deux salles de bains.
Le terrain de la propriété est de 1 054 m².
Cette maison est neuve.
On trouve l'École Primaire Consuelo Balsan à moins de 10 minutes à pied. Niveau transports, il y a la gare Dreux à moins de 10 minutes en voiture. Les nationales N12 et N154 sont accessibles à moins de 6 km et Évreux se situe à 30 km. On trouve un tennis, deux boulangeries et un bureau de poste à proximité du bien.
Son prix de vente est de 342 810 €.
Contactez Karen DELELIS (07-49-97-72-93) pour toute information sur la maison. Maisons Balency Gravigny est là pour vous accompagner dans toutes vos démarches.

Annonce proposée par un Agent Commercial Partenaire.

Mentions légales

Terrain proposé par un partenaire foncier selon disponibilités et autorisation de publicité au prix de 71 400 €. Hors droit d'enregistrement et frais de notaire. Terrain + Maison proposés au prix de 342 810 € (Hors branchements et raccordements, papiers peints, peintures, revêtement de sol dans les chambres. Tarif modifiable sans préavis). Etiquette énergie : A. Différents modèles disponibles pour ce terrain. Assurances et garanties du constructeur (RC professionnelle, décennale, dommage ouvrage, garantie de remboursement de l'acompte, livraison à prix et délai convenu) : https://www.maisons-balency.fr/informations-legales/. HEXAOM Services est enregistré auprès de l'ORIAS en tant que Courtier en financement, Niveau 1, sous le numéro 14001345.

Contactez l'agence de Gravigny

02 32 51 49 29

    * Champs obligatoires

    Vos informations sont traitées par HEXAOM et transmises à un conseiller commercial qui vous contactera afin de répondre à votre demande. Les plans et images présentés sur notre site sont la propriété d’HEXAOM et ne peuvent pas être reproduits sans son accord. Pour retrouver notre politique de protection des données personnelles et exercer vos droits conformément à la « loi informatique et liberté » cliquez-ici.