Maison neuve à
Saint-Georges-sur-Fontaine (76690) Référence : KB2385886_3

Prix du projet : Maison avec Terrain

prix 385 000 €

  • 7 pièces
  • 4 chambres
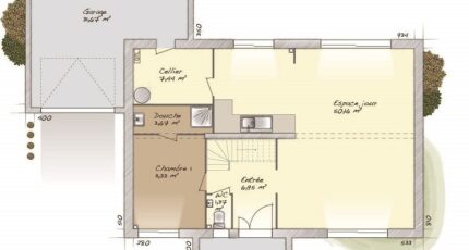
  • Surface maison 160 m2

VENTE d'une maison T7 (160 m²) à Saint-Georges-sur-Fontaine
IDÉALEMENT SITUÉE - MAISON 7 PIÈCES NEUVE
En vente : à 44 km de la Manche et à 13 km de Rouen, idéalement située dans Saint-Georges-sur-Fontaine (76690), nous vous proposons cette maison de 7 pièces de 160 m² et de 904 m² de terrain.
Il s'agit d'une maison de 2 niveaux. Elle inclut quatre chambres, une cuisine et deux salles de bains. Cette maison est neuve.
Ce bien se trouve dans un quartier prisé. Il y a l'École Primaire des Chasse-Marée à moins de 10 minutes à pied. Niveau transports en commun, on trouve cinq gares à moins de 10 minutes en voiture. Les autoroutes A28 et A151 et la nationale N28 sont accessibles à moins de 10 km. Il y a une bibliothèque, deux commerces et une boulangerie à proximité.
Il est à vendre pour la somme de 385 000 €.
Contactez notre agence (Kamel BAZIZ : 07-80-36-63-82) pour tout renseignement sur la maison, sur les démarches à suivre ou sur les modalités de vente. Faites de vos projets immobiliers une réalité avec Maisons Balency Boos.

Annonce proposée par un Agent Commercial Partenaire.

Mentions légales

Terrain proposé par un partenaire foncier selon disponibilités et autorisation de publicité au prix de 90 000 €. Hors droit d'enregistrement et frais de notaire. Terrain + Maison proposés au prix de 295 000 € (Hors branchements et raccordements, papiers peints, peintures, revêtement de sol dans les chambres. Tarif modifiable sans préavis). Etiquette énergie : A. Différents modèles disponibles pour ce terrain. Assurances et garanties du constructeur (RC professionnelle, décennale, dommage ouvrage, garantie de remboursement de l'acompte, livraison à prix et délai convenu) : https://www.maisons-balency.fr/informations-legales/. HEXAOM Services est enregistré auprès de l'ORIAS en tant que Courtier en financement, Niveau 1, sous le numéro 14001345.

Contactez l'agence de Boos

02 35 80 66 66

    * Champs obligatoires

    Vos informations sont traitées par HEXAOM et transmises à un conseiller commercial qui vous contactera afin de répondre à votre demande. Les plans et images présentés sur notre site sont la propriété d’HEXAOM et ne peuvent pas être reproduits sans son accord. Pour retrouver notre politique de protection des données personnelles et exercer vos droits conformément à la « loi informatique et liberté » cliquez-ici.