Maison neuve à
Saint-Germain-de-Pasquier (27370) Référence : FG2412906_1

Prix du projet : Maison avec Terrain

prix 393 735 €

  • 5 pièces
  • 3 chambres
  • Surface maison 120 m2

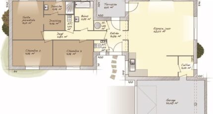
Maison de 5 pièces (120 m²) à vendre à Saint-Germain-de-Pasquier
EMPLACEMENT PRIVILÉGIÉ - 
En vente : localisée à quelques kilomètres de Rouen, bénéficiant d'un emplacement privilégié dans Saint-Germain-de-Pasquier (27370), votre agence Maisons Balency Louviers est heureuse de vous présenter cette maison de 5 pièces de plain-pied de 120 m² et de 3 040 m² de terrain.
Elle propose trois chambres dont une suite parentale, une cuisine ouverte sur la pièce de vie, d'un cellier donnant sur un double garage et deux salles de bains. Cette maison est neuve.
La maison se trouve dans un secteur prisé.

Son prix de vente est de 393 735 €.
Contactez Fanny GATINAULT (06-34-03-24-37) pour tout renseignement sur la maison. Maisons Balency Louviers est là pour vous accompagner dans tous vos projets immobiliers.

Annonce proposée par un Agent Commercial Partenaire.

Mentions légales

Terrain proposé par un partenaire foncier selon disponibilités et autorisation de publicité au prix de 122 000 €. Hors droit d'enregistrement et frais de notaire. Terrain + Maison proposés au prix de 393 735 € (Hors branchements et raccordements, papiers peints, peintures, revêtement de sol dans les chambres. Tarif modifiable sans préavis). Etiquette énergie : A. Différents modèles disponibles pour ce terrain. Assurances et garanties du constructeur (RC professionnelle, décennale, dommage ouvrage, garantie de remboursement de l'acompte, livraison à prix et délai convenu) : https://www.maisons-balency.fr/informations-legales/. HEXAOM Services est enregistré auprès de l'ORIAS en tant que Courtier en financement, Niveau 1, sous le numéro 14001345.

Contactez l'agence de Louviers

02 32 51 43 53

    * Champs obligatoires

    Vos informations sont traitées par HEXAOM et transmises à un conseiller commercial qui vous contactera afin de répondre à votre demande. Les plans et images présentés sur notre site sont la propriété d’HEXAOM et ne peuvent pas être reproduits sans son accord. Pour retrouver notre politique de protection des données personnelles et exercer vos droits conformément à la « loi informatique et liberté » cliquez-ici.