Maison neuve à
Saint-Jacques-sur-Darnétal (76160) Référence : EL2320352_5

Prix du projet : Maison avec Terrain

prix 259 900 €

  • 5 pièces
  • 3 chambres
  • Surface maison 90 m2

Saint-Jacques-sur-Darnétal : maison de 5 pièces (90 m²) en vente
IDÉALEMENT SITUÉE - MAISON 5 PIÈCES NEUVE
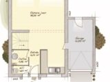
À deux pas de Rouen, nous sommes heureux de vous proposer en vente, idéalement située dans Saint-Jacques-sur-Darnétal (76160), cette maison de 5 pièces de 90 m². Elle offre trois chambres, une cuisine et une salle de bains.
Le terrain de la propriété s'étend sur 500 m².
C'est une maison de 2 niveaux. Elle est neuve.
La maison se trouve dans un quartier recherché. Il y a l'École Maternelle Duval Legay et l'École Élémentaire Jules Ferry à moins de 10 minutes à pied. Niveau transports, on trouve quatre gares à moins de 10 minutes en voiture. L'autoroute A28 et les nationales N28 et N338 sont accessibles à moins de 10 km. Il y a une bibliothèque, un tennis, deux boulangeries, deux commerces, une supérette et un bureau de poste à quelques minutes de la maison.
Elle est proposée à l'achat pour 259 900 €.
Prenez contact avec notre agence (Dany LEOVANT : 06-09-43-87-49) pour plus d'informations sur la propriété.

Annonce proposée par un Agent Commercial Partenaire.

Mentions légales

Terrain proposé par un partenaire foncier selon disponibilités et autorisation de publicité au prix de 66 000 €. Hors droit d'enregistrement et frais de notaire. Terrain + Maison proposés au prix de 259 900 € (Hors branchements et raccordements, papiers peints, peintures, revêtement de sol dans les chambres. Tarif modifiable sans préavis). Etiquette énergie : A. Différents modèles disponibles pour ce terrain. Assurances et garanties du constructeur (RC professionnelle, décennale, dommage ouvrage, garantie de remboursement de l'acompte, livraison à prix et délai convenu) : https://www.maisons-balency.fr/informations-legales/. HEXAOM Services est enregistré auprès de l'ORIAS en tant que Courtier en financement, Niveau 1, sous le numéro 14001345.

Contactez l'agence de Boos

02 35 80 66 66

    * Champs obligatoires

    Vos informations sont traitées par HEXAOM et transmises à un conseiller commercial qui vous contactera afin de répondre à votre demande. Les plans et images présentés sur notre site sont la propriété d’HEXAOM et ne peuvent pas être reproduits sans son accord. Pour retrouver notre politique de protection des données personnelles et exercer vos droits conformément à la « loi informatique et liberté » cliquez-ici.