Maison neuve à
Saint-Jean-du-Cardonnay (76150) Référence : SEMA9069_11

Prix du projet : Maison avec Terrain

prix 435 000 €

  • 7 pièces
  • 5 chambres
  • Surface maison 170 m2

VENTE : maison de 7 pièces (170 m²) à Saint-Jean-du-Cardonnay
PROCHE DE ROUEN - MAISON 7 PIÈCES NEUVE
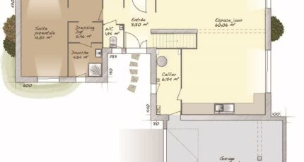
À 49 km de la Manche et à deux pas de Rouen, en vente à Saint-Jean-du-Cardonnay (76150), Maisons Balency Boos vous propose cette maison de 7 pièces de plain-pied de 170 m² et de 900 m² de terrain. Son intérieur se divise en cinq chambres, une cuisine et trois salles de bains.
La maison est neuve.
Il y a une école primaire dans le quartier. Côté transports, on trouve six gares à moins de 10 minutes en voiture. Les autoroutes A150, A151 et A28 et les nationales N338 et N28 sont accessibles à moins de 10 km. Il y a une boulangerie, deux commerces et un supermarché à quelques minutes du bien.
Elle est proposée à l'achat pour 435 000 €.
N'hésitez pas à prendre contact avec Sébastien MASSON (tél : 06-23-38-14-17) pour toute question sur la maison, sur les modalités de vente ou sur les démarches à suivre.

Annonce proposée par un Agent Commercial Partenaire.

Mentions légales

Terrain proposé par un partenaire foncier selon disponibilités et autorisation de publicité au prix de 105 000 €. Hors droit d'enregistrement et frais de notaire. Terrain + Maison proposés au prix de 435 000 € (Hors branchements et raccordements, papiers peints, peintures, revêtement de sol dans les chambres. Tarif modifiable sans préavis). Etiquette énergie : A. Différents modèles disponibles pour ce terrain. Assurances et garanties du constructeur (RC professionnelle, décennale, dommage ouvrage, garantie de remboursement de l'acompte, livraison à prix et délai convenu) : https://www.maisons-balency.fr/informations-legales/. HEXAOM Services est enregistré auprès de l'ORIAS en tant que Courtier en financement, Niveau 1, sous le numéro 14001345.

Contactez l'agence de Boos

02 35 80 66 66

    * Champs obligatoires

    Vos informations sont traitées par HEXAOM et transmises à un conseiller commercial qui vous contactera afin de répondre à votre demande. Les plans et images présentés sur notre site sont la propriété d’HEXAOM et ne peuvent pas être reproduits sans son accord. Pour retrouver notre politique de protection des données personnelles et exercer vos droits conformément à la « loi informatique et liberté » cliquez-ici.