Maison neuve à
Saint-Jean-du-Cardonnay (76150) Référence : SEMA9069_9

Prix du projet : Maison avec Terrain

prix 379 000 €

  • 5 pièces
  • 3 chambres
  • Surface maison 120 m2

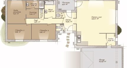
Maison F5 (120 m²) en vente à Saint-Jean-du-Cardonnay
PROCHE DE ROUEN - MAISON 5 PIÈCES NEUVE
En vente : localisée à 49 km de la Manche et à deux pas de Rouen, notre agence Maisons Balency Boos est ravie de vous présenter cette maison de 5 pièces de plain-pied de 120 m² et de 900 m² de terrain à Saint-Jean-du-Cardonnay (76150).
Son intérieur propose trois chambres, une cuisine et deux salles de bains. Cette maison est neuve.
Une école primaire est implantée dans le quartier. Côté transports en commun, il y a six gares à moins de 10 minutes en voiture. Les autoroutes A150, A151 et A28 et les nationales N338 et N28 sont accessibles à moins de 10 km. On trouve une boulangerie, deux commerces et un supermarché dans les environs.
Elle est à vendre pour la somme de 379 000 €.
Contactez Sébastien MASSON (tél : 06-23-38-14-17) pour plus d'informations sur la maison.

Annonce proposée par un Agent Commercial Partenaire.

Mentions légales

Terrain proposé par un partenaire foncier selon disponibilités et autorisation de publicité au prix de 105 000 €. Hors droit d'enregistrement et frais de notaire. Terrain + Maison proposés au prix de 379 000 € (Hors branchements et raccordements, papiers peints, peintures, revêtement de sol dans les chambres. Tarif modifiable sans préavis). Etiquette énergie : A. Différents modèles disponibles pour ce terrain. Assurances et garanties du constructeur (RC professionnelle, décennale, dommage ouvrage, garantie de remboursement de l'acompte, livraison à prix et délai convenu) : https://www.maisons-balency.fr/informations-legales/. HEXAOM Services est enregistré auprès de l'ORIAS en tant que Courtier en financement, Niveau 1, sous le numéro 14001345.

Contactez l'agence de Boos

02 35 80 66 66

    * Champs obligatoires

    Vos informations sont traitées par HEXAOM et transmises à un conseiller commercial qui vous contactera afin de répondre à votre demande. Les plans et images présentés sur notre site sont la propriété d’HEXAOM et ne peuvent pas être reproduits sans son accord. Pour retrouver notre politique de protection des données personnelles et exercer vos droits conformément à la « loi informatique et liberté » cliquez-ici.