Maison neuve à
Saint-Léger-en-Yvelines
(78610) Référence :
TD2256832_2
Prix du projet : Maison avec Terrain
prix 454 400 €
- 6 pièces
- 3 chambres
- Surface maison 133 m2
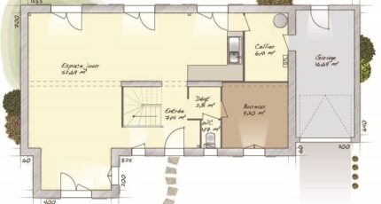
VENTE d'une maison T6 (133 m²) à Saint-Léger-en-Yvelines
IDÉALEMENT SITUÉE - MAISON 6 PIÈCES NEUVE
En vente : au pied du Transilien N (gare des Essarts-le-Roi, 40 min de Paris), nous sommes heureux de vous proposer cette maison de 6 pièces de 133 m² et de 400 m² de terrain idéalement située dans Saint-Léger-en-Yvelines (78610). Elle comporte trois chambres, une cuisine et deux salles de bains.
C'est une maison de 2 niveaux. Elle est neuve.
La maison se situe dans un secteur prisé. On y trouve une école primaire. Il y a un tennis, une bibliothèque, un commerce et deux épiceries à proximité.
Elle est proposée à l'achat pour 454 400 €.
N'hésitez pas à prendre contact avec notre agence (DUTEURTRE Thibault : 06-23-41-73-81) pour plus de renseignements sur la maison. Donnez vie à vos projets immobiliers avec Maisons Balency Coignières.
Annonce proposée par un Agent Commercial Partenaire.
Mentions légales
Terrain proposé par un partenaire foncier selon disponibilités et autorisation de publicité au prix de 149 000 €. Hors droit d'enregistrement et frais de notaire. Maison proposée, avec un contrat de construction de maison individuelle, dans le cadre de la loi du 19/12/1990, au prix de 305 400 € (Hors branchements et raccordements, papiers peints, peintures, revêtement de sol dans les chambres, qui sont chiffrés dans les travaux qui restent à charge du client. Tarif modifiable sans préavis). Étiquette énergie : A. Différents modèles disponibles pour ce terrain. Assurances et garanties du constructeur comprises (RC professionnelle, décennale, dommage ouvrage).Agence Maisons Balency de Coignières (78310)
- Téléphone :
- 01 34 61 42 59
- Adressse :
- Domexpo Ouest
78310 Coignières, France
