Maison neuve à
Saint-Lubin-de-la-Haye
(28410) Référence :
TD2258413_3
Prix du projet : Maison avec Terrain
prix 488 900 €
- 7 pièces
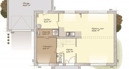
- 4 chambres
- Surface maison 160 m2
VENTE d'une maison de 7 pièces (160 m²) à Saint-Lubin-de-la-Haye
IDÉALEMENT SITUÉE - MAISON 7 PIÈCES NEUVE
À côté de la gare de Houdan (Paris à 50 min avec le Transilien N), Maisons Balency Coignières vous propose cette maison de 7 pièces de 160 m² en vente idéalement située dans Saint-Lubin-de-la-Haye (28410). Son intérieur inclut quatre chambres, une cuisine et deux salles de bains.
Le terrain du bien est de 1 023 m².
C'est une maison de 2 niveaux. Elle est neuve.
La maison est située dans un secteur attractif. L'École Primaire la Vesgre se trouve à moins de 10 minutes à pied. Niveau transports en commun, il y a quatre gares à moins de 10 minutes en voiture. On trouve un accès à la nationale N12 à 5 km et Mantes-la-Jolie est située à 22 km. On trouve un tennis et un commerce dans les environs.
Elle est proposée à l'achat pour 488 900 €.
Contactez Thibault DUTEURTRE (06-23-41-73-81) pour tout renseignement sur la maison.
Annonce proposée par un Agent Commercial Partenaire.
Mentions légales
Terrain proposé par un partenaire foncier selon disponibilités et autorisation de publicité au prix de 129 900 €. Hors droit d'enregistrement et frais de notaire. Maison proposée, avec un contrat de construction de maison individuelle, dans le cadre de la loi du 19/12/1990, au prix de 359 000 € (Hors branchements et raccordements, papiers peints, peintures, revêtement de sol dans les chambres, qui sont chiffrés dans les travaux qui restent à charge du client. Tarif modifiable sans préavis). Étiquette énergie : A. Différents modèles disponibles pour ce terrain. Assurances et garanties du constructeur comprises (RC professionnelle, décennale, dommage ouvrage).Agence Maisons Balency de Coignières (78310)
- Téléphone :
- 01 34 61 42 59
- Adressse :
- Domexpo Ouest
78310 Coignières, France
