Maison neuve à
Saint-Lubin-de-la-Haye
(28410) Référence :
TD2258413_5
Prix du projet : Maison avec Terrain
prix 430 900 €
- 6 pièces
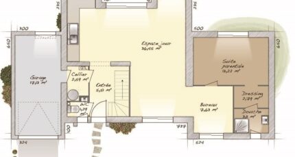
- 4 chambres
- Surface maison 90 m2
Saint-Lubin-de-la-Haye : maison de 6 pièces (90 m²) à vendre
IDÉALEMENT SITUÉE - MAISON 6 PIÈCES NEUVE
En vente : à proximité du Transilien N (gare de Houdan, 50 min de Paris), Maisons Balency Coignières vous présente cette maison de 6 pièces de 90 m² et de 1 023 m² de terrain idéalement située dans Saint-Lubin-de-la-Haye (28410).
Il s'agit d'une maison de 2 niveaux. Son intérieur inclut quatre chambres, une cuisine et deux salles de bains. La maison est neuve.
Cette maison se trouve dans un secteur prisé. Il y a l'École Primaire la Vesgre à moins de 10 minutes à pied. Niveau transports, on trouve quatre gares à moins de 10 minutes en voiture. La nationale N12 est accessible à 5 km et Mantes-la-Jolie est située à 22 km. Il y a un tennis et un commerce à quelques minutes.
Elle est à vendre pour la somme de 430 900 €.
Prenez contact avec Thibault DUTEURTRE (tél : 06-23-41-73-81) pour toute question sur la propriété. Concrétisez vos projets immobiliers avec Maisons Balency Coignières.
Annonce proposée par un Agent Commercial Partenaire.
Mentions légales
Terrain proposé par un partenaire foncier selon disponibilités et autorisation de publicité au prix de 129 900 €. Hors droit d'enregistrement et frais de notaire. Maison proposée, avec un contrat de construction de maison individuelle, dans le cadre de la loi du 19/12/1990, au prix de 301 000 € (Hors branchements et raccordements, papiers peints, peintures, revêtement de sol dans les chambres, qui sont chiffrés dans les travaux qui restent à charge du client. Tarif modifiable sans préavis). Étiquette énergie : A. Différents modèles disponibles pour ce terrain. Assurances et garanties du constructeur comprises (RC professionnelle, décennale, dommage ouvrage).Agence Maisons Balency de Coignières (78310)
- Téléphone :
- 01 34 61 42 59
- Adressse :
- Domexpo Ouest
78310 Coignières, France
