Maison neuve à
Saint-Mammès
(77670) Référence :
KM2344460_2
Prix du projet : Maison avec Terrain
prix 354 000 €
- 6 pièces
- 4 chambres
- Surface maison 120 m2
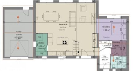
Saint-Mammès : maison F6 (120 m²) en vente
MAISON 6 PIÈCES NEUVE
Au pied de la gare (Paris à 50 min avec le Transilien R), en vente à Saint-Mammès (77670), nous sommes ravis de vous proposer cette maison de 6 pièces de 120 m².
Cette maison comporte 2 niveaux. Elle se divise en quatre chambres, une cuisine et trois salles de bains. La maison est neuve.
Le terrain de la propriété s'étend sur 587 m².
Quatre établissements scolaires sont implantés à moins de 10 minutes à pied. Côté transports, il y a la gare Saint-Mammès juste à côté. On trouve une bibliothèque, deux boulangeries, trois commerces, un bureau de poste, une épicerie et une boucherie-charcuterie dans les environs. Enfin, le marché Quai de la Seine anime les environs chaque dimanche matin.
Elle est proposée à l'achat pour 354 000 €.
N'hésitez pas à prendre contact avec notre agence au 06-49-43-56-27 pour toute question sur la maison, sur les démarches à suivre ou sur les modalités de vente. Maisons Balency Ormoy vous accompagne à toutes les étapes de votre projet et dans tous vos projets immobiliers.
Annonce proposée par un Agent Commercial Partenaire.
Mentions légales
Terrain proposé par un partenaire foncier selon disponibilités et autorisation de publicité au prix de 94 000 €. Hors droit d'enregistrement et frais de notaire. Terrain + Maison proposés au prix de 354 000 € (Hors branchements et raccordements, papiers peints, peintures, revêtement de sol dans les chambres. Tarif modifiable sans préavis). Etiquette énergie : A. Différents modèles disponibles pour ce terrain. Assurances et garanties du constructeur (RC professionnelle, décennale, dommage ouvrage, garantie de remboursement de l'acompte, livraison à prix et délai convenu) : https://www.maisons-balency.fr/informations-legales/. HEXAOM Services est enregistré auprès de l'ORIAS en tant que Courtier en financement, Niveau 1, sous le numéro 14001345.Agence Maisons Balency de Ormoy (91540)
- Téléphone :
- 09 67 70 15 81
- Adressse :
- 23 chemin de Tournenfils - 1er étage
91540 Ormoy, France
