Maison neuve à
Saint-Mammès
(77670) Référence :
AM2414170_1
Prix du projet : Maison avec Terrain
prix 237 153 €
- 3 pièces
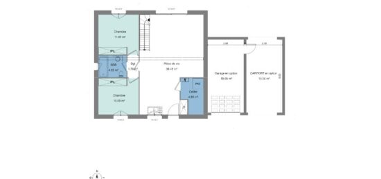
- 1 chambre
- Surface maison 50 m2
PROJET TERRAIN + MAISON + NOTAIRE + VIABILISATION = 237 153€
À côté de la gare (Paris à 50 min par le Transilien R), nous sommes heureux de vous présenter cette maison de 3 pièces de plain-pied de 50 m² et de 500 m² de terrain bénéficiant d'un emplacement privilégié dans Saint-Mammès (77670).
Elle propose une chambre, une cuisine et une salle de bains. Cette maison est neuve.
Cette propriété se trouve dans un quartier prisé. Il y a quatre établissements scolaires à moins de 10 minutes à pied. Niveau transports en commun, on trouve la gare Saint-Mammès dans un rayon de 1 km. On trouve une bibliothèque, deux boulangeries, trois commerces, une épicerie, une boucherie-charcuterie et un bureau de poste à quelques minutes du bien. Enfin, le marché Quai de la Seine a lieu chaque dimanche matin.
Elle est proposée à l'achat pour 237 153 €.
Prenez contact avec Arnaud MOINE (tél : 06-40-48-40-55) pour tout renseignement sur la maison.
Annonce proposée par un Agent Commercial Partenaire.
Mentions légales
Terrain proposé par un partenaire foncier selon disponibilités et autorisation de publicité au prix de 110 000 €. Hors droit d'enregistrement et frais de notaire. Terrain + Maison proposés au prix de 237 153 € (Hors branchements et raccordements, papiers peints, peintures, revêtement de sol dans les chambres. Tarif modifiable sans préavis). Etiquette énergie : A. Différents modèles disponibles pour ce terrain. Assurances et garanties du constructeur (RC professionnelle, décennale, dommage ouvrage, garantie de remboursement de l'acompte, livraison à prix et délai convenu) : https://www.maisons-balency.fr/informations-legales/. HEXAOM Services est enregistré auprès de l'ORIAS en tant que Courtier en financement, Niveau 1, sous le numéro 14001345.Agence Maisons Balency de Moret-sur-Loing (77250)
- Téléphone :
- 09 78 81 26 91
- Adressse :
- 96 avenue de Fontainebleau
77250 Moret-sur-Loing, France
