Maison neuve à
Saint-Martin-du-Vivier (76160) Référence : MJ2310599_2

Prix du projet : Maison avec Terrain

prix 329 900 €

  • 6 pièces
  • 5 chambres
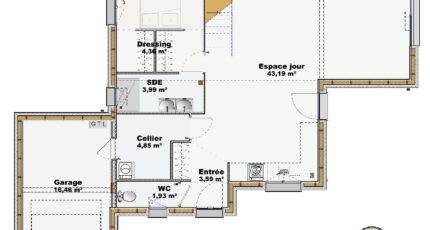
  • Surface maison 114 m2

Maison T6 (114 m²) à vendre à Saint-Martin-du-Vivier
QUARTIER RECHERCHÉ - MAISON 6 PIÈCES NEUVE
À quelques kilomètres de Rouen, nous sommes ravis de vous proposer cette maison de 6 pièces de 114 m² et de 700 m² de terrain dans un secteur recherché de Saint-Martin-du-Vivier (76160).
Il s'agit d'une maison de 2 niveaux. Elle compte cinq chambres, une cuisine et deux salles de bains. La maison est neuve.
La maison est située dans un quartier prisé. On trouve l'École Primaire Joseph Hemery à moins de 10 minutes à pied. Niveau transports en commun, il y a la gare Saint-Martin-du-Vivier à quelques pas du bien. Les autoroutes A28 et A150 et les nationales N28 et N338 sont accessibles à moins de 7 km. On trouve une bibliothèque, deux tennis, un commerce, deux boulangeries et une épicerie à proximité de la maison.
Son prix de vente est de 329 900 €.
Contactez notre agence (AMANE JOURDON : 06.98.97.57.93) pour tout renseignement sur le bien.

Annonce proposée par un Agent Commercial Partenaire.

Mentions légales

Terrain proposé par un partenaire foncier selon disponibilités et autorisation de publicité au prix de 99 000 €. Hors droit d'enregistrement et frais de notaire. Terrain + Maison proposés au prix de 230 900 € (Hors branchements et raccordements, papiers peints, peintures, revêtement de sol dans les chambres. Tarif modifiable sans préavis). Etiquette énergie : A. Différents modèles disponibles pour ce terrain. Assurances et garanties du constructeur (RC professionnelle, décennale, dommage ouvrage, garantie de remboursement de l'acompte, livraison à prix et délai convenu) : https://www.maisons-balency.fr/informations-legales/. HEXAOM Services est enregistré auprès de l'ORIAS en tant que Courtier en financement, Niveau 1, sous le numéro 14001345.

Contactez l'agence de Boos

02 35 80 66 66

    * Champs obligatoires

    Vos informations sont traitées par HEXAOM et transmises à un conseiller commercial qui vous contactera afin de répondre à votre demande. Les plans et images présentés sur notre site sont la propriété d’HEXAOM et ne peuvent pas être reproduits sans son accord. Pour retrouver notre politique de protection des données personnelles et exercer vos droits conformément à la « loi informatique et liberté » cliquez-ici.