Maison neuve à
Saint-Maximin
(60740) Référence :
AF2344713_2
Prix du projet : Maison avec Terrain
prix 335 000 €
- 5 pièces
- 3 chambres
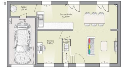
- Surface maison 90 m2
Maison T5 (90 m²) à vendre à Saint-Maximin
MAISON 5 PIÈCES NEUVE - PROCHE DE SARCELLES
Proche du RER D (station Chantilly-Gouvieux, 45 min de Paris), en vente à Saint-Maximin (60740), nous vous présentons cette maison de 5 pièces de 90 m². Elle dispose de trois chambres, d'une cuisine et d'une salle de bains.
Le terrain du bien s'étend sur 560 m².
Cette maison possède 2 niveaux. Elle est neuve.
Il y a l'École Primaire Danielle Casanova à moins de 10 minutes à pied et deux crèches. Côté transports, on trouve la ligne de RER D (Chantilly-Gouvieux) ainsi que 10 gares à moins de 10 minutes en voiture. Les autoroutes A1 et A16 et des nationales sont accessibles à moins de 19 km et Sarcelles est située à 27 km. On trouve une boulangerie, quatre commerces, un bureau de poste et deux épiceries à quelques minutes.
Son prix de vente est de 360 000 €.
N'hésitez pas à prendre contact avec notre agence (Antoine FLIPPE : 07-82-59-37-75) pour obtenir de plus amples informations sur cette maison, sur les modalités de vente ou sur les démarches à suivre.
Annonce proposée par un Agent Commercial Partenaire.
Mentions légales
Terrain proposé par un partenaire foncier selon disponibilités et autorisation de publicité au prix de 150 000 €. Hors droit d'enregistrement et frais de notaire. Terrain + Maison proposés au prix de 335 000 € (Hors branchements et raccordements, papiers peints, peintures, revêtement de sol dans les chambres. Tarif modifiable sans préavis). Etiquette énergie : A. Différents modèles disponibles pour ce terrain. Assurances et garanties du constructeur (RC professionnelle, décennale, dommage ouvrage, garantie de remboursement de l'acompte, livraison à prix et délai convenu) : https://www.maisons-balency.fr/informations-legales/. HEXAOM Services est enregistré auprès de l'ORIAS en tant que Courtier en financement, Niveau 1, sous le numéro 14001345.Agence Maisons Balency de Baillet-en-France (95560)
- Téléphone :
- 01 34 46 05 23
- Adressse :
- 81 rue de Paris
95560 Baillet-en-France, France
