Maison neuve à
Saint-Michel-sur-Orge
(91240) Référence :
KM2419843_2
Prix du projet : Maison avec Terrain
prix 508 000 €
- 6 pièces
- 5 chambres
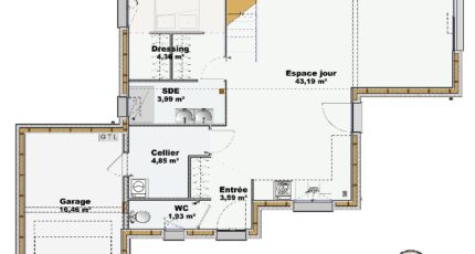
- Surface maison 114 m2
Maison Écologique en Bois (120 m²) , à bâtir à Saint-Michel-sur-Orge (91240) dès 508 000 €.
Découvrez cette maison environnementale "CANOPÉE" réalisable à Saint-Michel-sur-Orge, proche du CENTRE-VILLE, des commodités et du RER C, sur un beau terrain de 644 m² profond de plus de 45 mètres.
Imaginée spécialement par Les Maisons BALENCY Ormoy, cette habitation alliera performance énergétique, écologie et confort moderne, et aura un score DPE A ou B.
Grâce à une isolation intérieure et extérieure renforcée (R = 6,56 m².C°/W) et à une conception optimisée, votre future maison sera 2 fois plus isolante qu'un mur en béton ou en brique, sans pont thermique, pour un confort idéal été comme hiver.
Son ossature bois issue de forêts éco-gérées garantit un bilan carbone positif, un chantier propre (65 % de déchets en moins) et une construction rapide murs livrés et montés en une journée !
🏡 Avantages clés :
- Habitat écologique et économique
- Réduction de 60 % de l'impact climatique
- Jusqu'à 80 % d'eau économisée lors de la conception
- Isolation thermique et acoustique renforcées
- Matériaux durables et sans contrainte d'entretien
- Études et accompagnement personnalisés (terrain + démarches administratives)
- Fabrication française certifiée
Contactez Les Maisons Balency d'Ormoy au 09 67 70 15 81 pour découvrir nos modèles en ossature bois et donner vie à votre projet, de la recherche foncière à la remise de vos clés !
Annonce proposée par un Agent Commercial Partenaire.
Mentions légales
Terrain proposé par un partenaire foncier selon disponibilités et autorisation de publicité au prix de 195 000 €. Hors droit d'enregistrement et frais de notaire. Terrain + Maison proposés au prix de 508 000 € (Hors branchements et raccordements, papiers peints, peintures, revêtement de sol dans les chambres. Tarif modifiable sans préavis). Etiquette énergie : A. Différents modèles disponibles pour ce terrain. Assurances et garanties du constructeur (RC professionnelle, décennale, dommage ouvrage, garantie de remboursement de l'acompte, livraison à prix et délai convenu) : https://www.maisons-balency.fr/informations-legales/. HEXAOM Services est enregistré auprès de l'ORIAS en tant que Courtier en financement, Niveau 1, sous le numéro 14001345.Agence Maisons Balency de Ormoy (91540)
- Téléphone :
- 09 67 70 15 81
- Adressse :
- 23 chemin de Tournenfils - 1er étage
91540 Ormoy, France
