Maison neuve à
Saint-Nicolas-d'Aliermont (76510) Référence : RC2383930_1

Prix du projet : Maison avec Terrain

prix 374 393 €

  • 7 pièces
  • 4 chambres
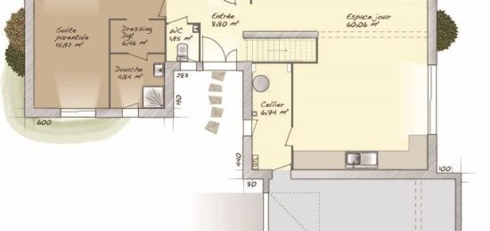
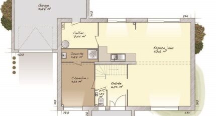
  • Surface maison 160 m2

Saint-Nicolas-d'Aliermont : maison de 7 pièces (160 m²) à construire.
IDÉALEMENT SITUÉE - MAISON 7 PIÈCES NEUVE
En vente : située à 10 km de la Manche et à deux pas de Dieppe, Maisons Balency Boos vous propose cette maison de 7 pièces de 160 m² idéalement située dans Saint-Nicolas-d'Aliermont (76510).
Cette maison compte 2 niveaux. Elle inclut quatre chambres, une cuisine et deux salles de bains. Cette maison est neuve.
Le terrain de la propriété est de 1 244 m².
La maison est située dans un secteur attractif. L'École Maternelle Jacques de Thevray, le Collège Claude Monet et l'École Élémentaire Jean Rostand se trouvent à moins de 10 minutes à pied. La nationale N27 est accessible à 13 km. Il y a un tennis, des commerces, deux boulangeries, deux épiceries, trois boucheries-charcuteries et un bureau de poste dans les environs.
Elle est à vendre pour la somme de 374 393 €.
N'hésitez pas à prendre contact avec notre agence (Célia RENIER : 07-62-90-87-77) pour toute question sur la propriété. Maisons Balency Boos est là pour vous accompagner dans toutes vos démarches.

Annonce proposée par un Agent Commercial Partenaire.

Mentions légales

Terrain proposé par un partenaire foncier selon disponibilités et autorisation de publicité au prix de 52 000 €. Hors droit d'enregistrement et frais de notaire. Terrain + Maison proposés au prix de 322 393 € (Hors branchements et raccordements, papiers peints, peintures, revêtement de sol dans les chambres. Tarif modifiable sans préavis). Etiquette énergie : A. Différents modèles disponibles pour ce terrain. Assurances et garanties du constructeur (RC professionnelle, décennale, dommage ouvrage, garantie de remboursement de l'acompte, livraison à prix et délai convenu) : https://www.maisons-balency.fr/informations-legales/. HEXAOM Services est enregistré auprès de l'ORIAS en tant que Courtier en financement, Niveau 1, sous le numéro 14001345.

Contactez l'agence de Boos

02 35 80 66 66

    * Champs obligatoires

    Vos informations sont traitées par HEXAOM et transmises à un conseiller commercial qui vous contactera afin de répondre à votre demande. Les plans et images présentés sur notre site sont la propriété d’HEXAOM et ne peuvent pas être reproduits sans son accord. Pour retrouver notre politique de protection des données personnelles et exercer vos droits conformément à la « loi informatique et liberté » cliquez-ici.