Maison neuve à
Saint-Ouen-du-Tilleul (27670) Référence : KXA2332233_4

Prix du projet : Maison avec Terrain

prix 299 000 €

  • 5 pièces
  • 3 chambres
  • Surface maison 120 m2

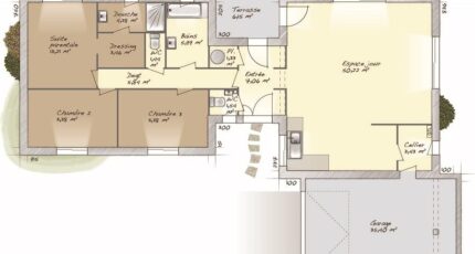
Maison de 5 pièces (120 m²) en vente à Saint-Ouen-du-Tilleul
PROCHE DE ROUEN - MAISON 5 PIÈCES NEUVE
À vendre : située à quelques kilomètres de Rouen, venez découvrir à Saint-Ouen-du-Tilleul (27670), cette maison de 5 pièces de plain-pied de 120 m² et de 821 m² de terrain. Conçue de plain-pied, elle compte trois chambres, une cuisine et deux salles de bains.
La maison est neuve.
Il y a l'École Élémentaire René Bellanger et l'École Maternelle le Petit Prince à moins de 10 minutes à pied. Niveau transports en commun, on trouve deux gares (Elbeuf-Saint-Aubin et Bourgtheroulde-Thuit-Hébert) à moins de 10 minutes en voiture. Les autoroutes A13 et A139 et la nationale N138 sont accessibles à moins de 10 km. Il y a un tennis, une bibliothèque, deux commerces, une boulangerie, une boucherie-charcuterie, un bureau de poste et une supérette à proximité.
Son prix de vente est de 299 000 €.
N'hésitez pas à prendre contact avec Kévin XAVIER ALVES (06-58-91-13-87) pour plus d'informations sur la maison ou sur les modalités de vente. Faites de vos projets immobiliers une réalité avec Maisons Balency Boos.

Annonce proposée par un Agent Commercial Partenaire.

Mentions légales

Terrain proposé par un partenaire foncier selon disponibilités et autorisation de publicité au prix de 84 000 €. Hors droit d'enregistrement et frais de notaire. Terrain + Maison proposés au prix de 215 000 € (Hors branchements et raccordements, papiers peints, peintures, revêtement de sol dans les chambres. Tarif modifiable sans préavis). Etiquette énergie : A. Différents modèles disponibles pour ce terrain. Assurances et garanties du constructeur (RC professionnelle, décennale, dommage ouvrage, garantie de remboursement de l'acompte, livraison à prix et délai convenu) : https://www.maisons-balency.fr/informations-legales/. HEXAOM Services est enregistré auprès de l'ORIAS en tant que Courtier en financement, Niveau 1, sous le numéro 14001345.

Contactez l'agence de Boos

02 35 80 66 66

    * Champs obligatoires

    Vos informations sont traitées par HEXAOM et transmises à un conseiller commercial qui vous contactera afin de répondre à votre demande. Les plans et images présentés sur notre site sont la propriété d’HEXAOM et ne peuvent pas être reproduits sans son accord. Pour retrouver notre politique de protection des données personnelles et exercer vos droits conformément à la « loi informatique et liberté » cliquez-ici.