Maison neuve à
Saint-Ouen-du-Tilleul (27670) Référence : KXA2334180_2

Prix du projet : Maison avec Terrain

prix 395 000 €

  • 7 pièces
  • 5 chambres
  • Surface maison 170 m2

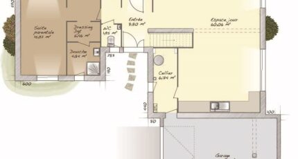
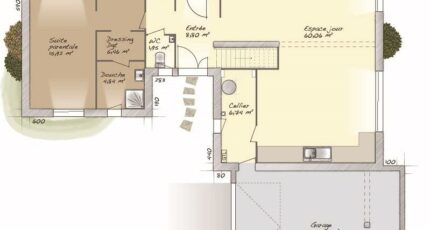
Saint-Ouen-du-Tilleul : maison de 7 pièces (170 m²) à vendre
MAISON 7 PIÈCES NEUVE - PROCHE DE ROUEN
À vendre : localisée à 19 km de Rouen, nous vous présentons cette maison de 7 pièces de plain-pied de 170 m² à Saint-Ouen-du-Tilleul (27670).
Elle offre cinq chambres, une cuisine et trois salles de bains. La maison est neuve.
Le terrain du bien est de 540 m².
Il y a l'École Élémentaire René Bellanger et l'École Maternelle le Petit Prince à moins de 10 minutes à pied. Niveau transports en commun, on trouve deux gares (Elbeuf-Saint-Aubin et Bourgtheroulde-Thuit-Hébert) à moins de 10 minutes en voiture. Les autoroutes A13 et A139 et la nationale N138 sont accessibles à moins de 10 km. Il y a un tennis, une bibliothèque, deux commerces, une boulangerie, un bureau de poste, une boucherie-charcuterie et une supérette à quelques minutes.
Son prix de vente est de 395 000 €.
Prenez contact avec Kévin XAVIER ALVES (06-58-91-13-87) pour plus de renseignements sur cette maison. Maisons Balency Boos est là pour vous accompagner à toutes les étapes de votre projet.

Annonce proposée par un Agent Commercial Partenaire.

Mentions légales

Terrain proposé par un partenaire foncier selon disponibilités et autorisation de publicité au prix de 65 000 €. Hors droit d'enregistrement et frais de notaire. Terrain + Maison proposés au prix de 330 000 € (Hors branchements et raccordements, papiers peints, peintures, revêtement de sol dans les chambres. Tarif modifiable sans préavis). Etiquette énergie : A. Différents modèles disponibles pour ce terrain. Assurances et garanties du constructeur (RC professionnelle, décennale, dommage ouvrage, garantie de remboursement de l'acompte, livraison à prix et délai convenu) : https://www.maisons-balency.fr/informations-legales/. HEXAOM Services est enregistré auprès de l'ORIAS en tant que Courtier en financement, Niveau 1, sous le numéro 14001345.

Contactez l'agence de Boos

02 35 80 66 66

    * Champs obligatoires

    Vos informations sont traitées par HEXAOM et transmises à un conseiller commercial qui vous contactera afin de répondre à votre demande. Les plans et images présentés sur notre site sont la propriété d’HEXAOM et ne peuvent pas être reproduits sans son accord. Pour retrouver notre politique de protection des données personnelles et exercer vos droits conformément à la « loi informatique et liberté » cliquez-ici.