Maison neuve à
Saint-Ouen-du-Tilleul (27670) Référence : KB2354576_3

Prix du projet : Maison avec Terrain

prix 350 000 €

  • 7 pièces
  • 4 chambres
  • Surface maison 160 m2

VENTE : maison T7 (160 m²) à Saint-Ouen-du-Tilleul
IDÉALEMENT SITUÉE - MAISON 7 PIÈCES NEUVE
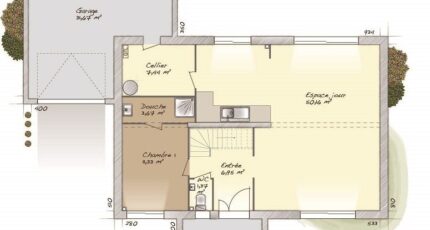
En vente : à 19 km de Rouen, venez découvrir cette maison de 7 pièces de 160 m² et de 821 m² de terrain idéalement située dans Saint-Ouen-du-Tilleul (27670). Elle offre quatre chambres, une cuisine et deux salles de bains.
Cette maison compte 2 niveaux. Elle est neuve.
La maison se situe dans un secteur recherché. L'École Élémentaire René Bellanger et l'École Maternelle le Petit Prince sont implantées à moins de 10 minutes à pied. Niveau transports en commun, on trouve les gares Elbeuf-Saint-Aubin et Bourgtheroulde-Thuit-Hébert à moins de 10 minutes en voiture. Les autoroutes A13 et A139 et la nationale N138 sont accessibles à moins de 10 km. Il y a un tennis, une bibliothèque, deux commerces, une boulangerie, une supérette, une boucherie-charcuterie et un bureau de poste dans les environs.
Elle est proposée à l'achat pour 350 000 €.
N'hésitez pas à prendre contact avec notre agence (Aurélien LEOVANT : 02-35-80-66-66) pour obtenir de plus amples informations sur la maison, sur les démarches à suivre ou sur les modalités de vente.

Annonce proposée par un Agent Commercial Partenaire.

Mentions légales

Terrain proposé par un partenaire foncier selon disponibilités et autorisation de publicité au prix de 83 700 €. Hors droit d'enregistrement et frais de notaire. Terrain + Maison proposés au prix de 266 300 € (Hors branchements et raccordements, papiers peints, peintures, revêtement de sol dans les chambres. Tarif modifiable sans préavis). Etiquette énergie : A. Différents modèles disponibles pour ce terrain. Assurances et garanties du constructeur (RC professionnelle, décennale, dommage ouvrage, garantie de remboursement de l'acompte, livraison à prix et délai convenu) : https://www.maisons-balency.fr/informations-legales/. HEXAOM Services est enregistré auprès de l'ORIAS en tant que Courtier en financement, Niveau 1, sous le numéro 14001345.

Contactez l'agence de Boos

02 35 80 66 66

    * Champs obligatoires

    Vos informations sont traitées par HEXAOM et transmises à un conseiller commercial qui vous contactera afin de répondre à votre demande. Les plans et images présentés sur notre site sont la propriété d’HEXAOM et ne peuvent pas être reproduits sans son accord. Pour retrouver notre politique de protection des données personnelles et exercer vos droits conformément à la « loi informatique et liberté » cliquez-ici.